
| Číslo zakázky: | 27760 | ![]() Karta nemovitosti |
|---|---|---|
| Typ zakázky: | prodej |
Cena je uvedená vč. provize RK a právního servisu, Exkluzivně nabízíme k prodeji dva atypické domky kolaudované jako ubytovací jednotky
Zprostredkovale nevolejte mi prosim
Nachází se v blízkosti administrativního centra Brumlovka.
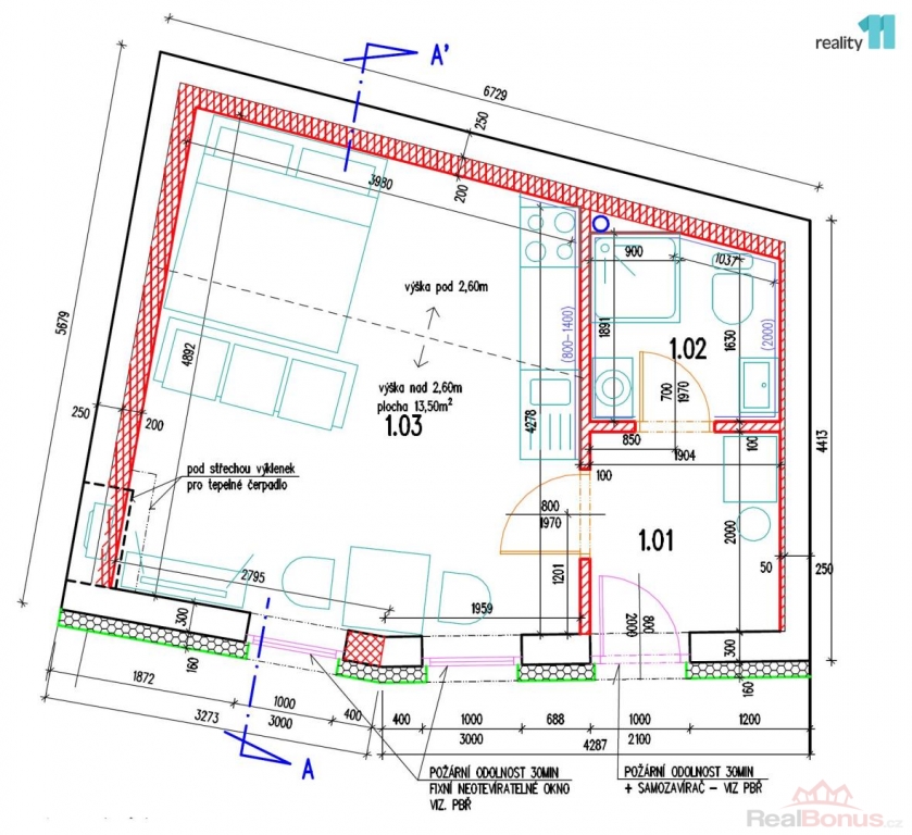
Celková užitná plocha obou dohromady: 34 m.
K výhradnímu užívání je v pronájmu prostorná terasa, orientovaná na jih, možno instalovat pergolu, krb či vířivku (je vyvedena voda i elektrický kabel).
Novostavba z roku 2024 a je umístěna ve vnitrobloku, který Vám zajišťuje soukromí a klid.
Světlá místnost s vysokým stropem (je možno vestavět i patro na spaní) má velká francouzská okna s výhledem na terasu.
Na podlahách je instalovaná dlažba, pod kterou je příjemné podlahové topení.
Tepelnou pohodu zajišťuje klimatizace a nízké provozní náklady pak zateplení polystyren 20cm a instalovaná centrální rekuperace.
Ohřev vody je bojlerem.
Prostory jsou vymalovány na bílou barvu.
Zařízeno kuchyňskou linkou a el. sporákem a jsou osazeny interiérové dveře.
Koupelna s WC a sprchovým koutem.
Jedná se o zajímavou investiční příležitost. Ideální k pronájmu např. o který se vám ráda zdarma postarám. Pronajímám v domě všechny byty.
Přímo u autobusové zastávky Hadovitá a na metro C-Kačerov 1 zastávka.
Parkování je možné na placeném parkovišti nebo lze vyřídit rezidentní parkovací kartu, které se nachází cca 100m od domu. Ev. číslo: 27760. Energetický štítek: C
| Cena: |
(za nemovitost) 4 490 000,- Kč
(Cena je uvedená vč. provize RK a právního servisu)
|
|---|
| Dispozice bytu | 1+1 |
|---|---|
| Číslo podlaží v domě | 1 |
| Počet podlaží objektu | 1 |
| Celková podlahová plocha | 34 m² |
| Druh objektu | cihlová |
| Stav objektu | po rekonstrukci |
| Energetická třída | C - Úsporná |
| Vlastnictví | osobní |
| Vybaveno | Nezařízeno |
| Užitná plocha | 34 m² |




