| Číslo zakázky: | 32020 | ![]() Karta nemovitosti |
|---|---|---|
| Typ zakázky: | prodej |
, Nabízíme k prodeji zcela nový rodinný dům 4+kk v oblíbené obci Kolová, jen pár minut od Karlových Varů.
Dům je nově dokončený, nikdy neobývaný a připravený k okamžitému nastěhování. Stačí jen dokončit kuchyňskou linku, terénní úpravy a oplocení.
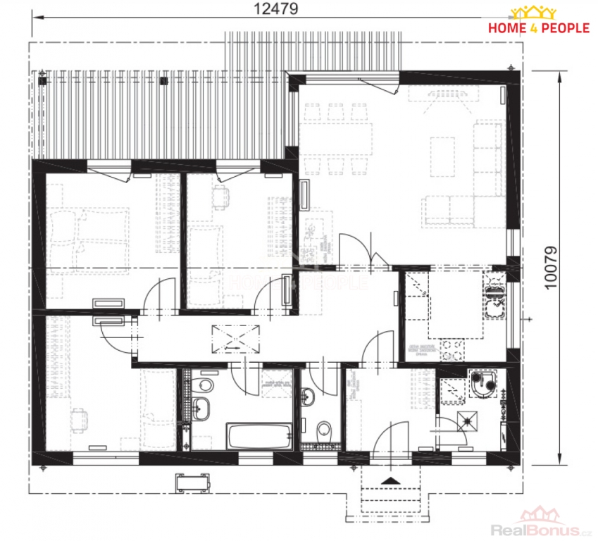
Dům o dispozici 4+kk s užitnou plochou 90 m stojí na rovinatém pozemku o rozloze přibližně 1 000 m. Součástí je také terasa o velikosti 14,5 m, kterou je potřeba dokončit a parkování je možné přímo na vlastním pozemku. Stavba byla dokončena v roce 2025.
Dispozičně je dům řešen velmi prakticky. Nachází se zde zádveří o výměře 5 m, chodba o velikosti 11 m, samostatné WC o rozloze 2,30 m a koupelna s dalším WC o velikosti 6 m. Ložnice má 12 m, první pokoj 10 m a druhý pokoj 9 m. Z obou pokojů je přímý vstup na terasu. Dominantou domu je prostorný obývací pokoj o výměře 24,5 m, na který navazuje kuchyně o velikosti 6,5 m, která je připravená k dokončení podle představ nového majitele. V zadní části domu se nachází technická místnost o rozloze 3,5 m, kde je umístěn bojler a příprava pro další technologie.
Mezi hlavní výhody domu patří to, že se jedná o zcela novou stavbu od českého výrobce, která nabízí kvalitní a úsporné bydlení. Interiér je proveden v nadstandardu najdete zde vinylové podlahy, antracitové detaily (vypínače, zásuvky, okna). Obývací pokoj doplňuje velké francouzské okno HS - portál s bezbariérovým vstupem na zahradu a současně je v obývacím pokoji možnost instalace krbových kamen. Dům je vybaven trojskly, v každé místnosti klimatizací a podlahovým topením. Kromě toho je zde příprava pro fotovoltaiku, dobíjecí zásuvku pro elektromobil, venkovní žaluzie.
Obec Kolová nabízí klidné bydlení obklopené přírodou, přesto se skvělou dostupností do Karlových Varů. V obci je MHD, škola, obchod, pošta, nedaleko se nachází golfové hřiště a celkově jde o ideální místo pro rodiny i ty, kteří hledají klidné, pohodové bydlení v blízkosti města. V případě dotazů, mě neváhejte kontaktovat. Ev. číslo: 32020. Energetický štítek: B
| Cena: | (za nemovitost) 8 990 000,- Kč |
|---|
| Počet podlaží objektu | 1 |
|---|---|
| Celková podlahová plocha | 90 m² |
| Druh objektu | dřevěná |
| Stav objektu | novostavba |
| Energetická třída | B - Velmi úsporná |
| Vlastní pozemek | 909 m² |
| Počet míst k parkování | 3 |
| Zastavěná plocha | 125 m² |
| Užitná plocha | 90 m² |
| Poloha objektu | samostatný |




