| Číslo zakázky: | 971285 | ![]() Karta nemovitosti |
|---|---|---|
| Typ zakázky: | prodej |
Stavební pozemek 1 495 m se stavebním povolením Březová Oleško, Praha západ
Hledáte místo pro život v přírodě, ale s Prahou na dosah ruky? Nabízíme k prodeji exkluzivní, rovinatý stavební pozemek v malebné obci BřezováOleško, ulice Lipová.
Tato nabídka představuje unikátní příležitost pro ty, kteří nechtějí ztrácet čas papírováním. Pozemek disponuje vydaným stavebním povolením a schváleným projektem, takže můžete začít téměř okamžitě stavět.
Hlavní přednosti pozemku:
Velkorysá výměra a tvar: Celková plocha 1 495 m s ideálními rozměry cca 30 × 50 m. Pozemek je rovinatý a bezpečně umístěný mezi stávající zástavbou, což zaručuje soukromí.
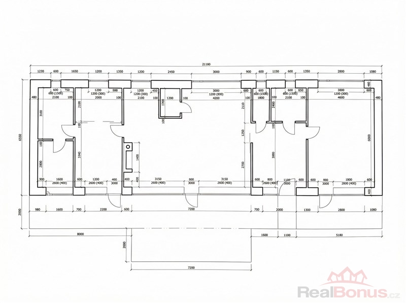
Připravenost k výstavbě: K dispozici je schválený projekt na bungalov (148 m) a doplňkovou stavbu/zázemí s garáží (102 m). Ušetříte tak čas i peníze za projektovou dokumentaci a povolovací procesy.
Inženýrské sítě:
Elektřina: Zavedena (3 fáze).
Voda: Na pozemku je nová vrtaná studna (hloubka 44 m) a na hranici pozemku je možnost napojení na obecní vodovod.
Internet: Na hranici pozemku vede zcela nový optický kabel O2 (realizován 1/2026).
Odpady: Obecní kanalizace je ve stádiu přípravy (nyní řešeno v projektu jímkou/ČOV).
Lokalita a občanská vybavenost:
BřezováOleško je vyhledávanou lokalitou na jižním okraji Prahy, která kombinuje klid venkova s výbornou dostupností civilizace.
Rodinné zázemí: Jen 300 metrů od pozemku se nachází nová mateřská škola. V okolí se nacházejí obce Zvole a Vrané nad Vltavou, které poskytují veškerou občanskou vybavenost.
Doprava: Výborné spojení autem i MHD. V blízkosti je vlakové nádraží (Vrané n. Vlt.) a příměstské autobusy.
Budoucnost a zhodnocení: Lokalita má obrovský investiční potenciál díky plánovanému otevření metra trasy D (Písnice) v roce 2026, které zásadně zkrátí cestu do centra Prahy na pár desítek minut.
Pozemek je ihned k dispozici a připravený pro nového majitele.
Přijďte se podívat na místo, kde může stát váš nový domov. Prohlídka vás přesvědčí o jedinečnosti této lokality.
| Cena: |
(za nemovitost) 13 900 000,- Kč
(včetně provize)
|
|---|
| Vlastnictví | osobní |
|---|---|
| Vlastní pozemek | 1 495 m² |
| Vybaveno | Nezařízeno |
| Druh pozemku | pro bydlení |




