| Číslo zakázky: | 53005 | ![]() Karta nemovitosti |
|---|---|---|
| Typ zakázky: | prodej |
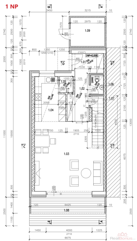
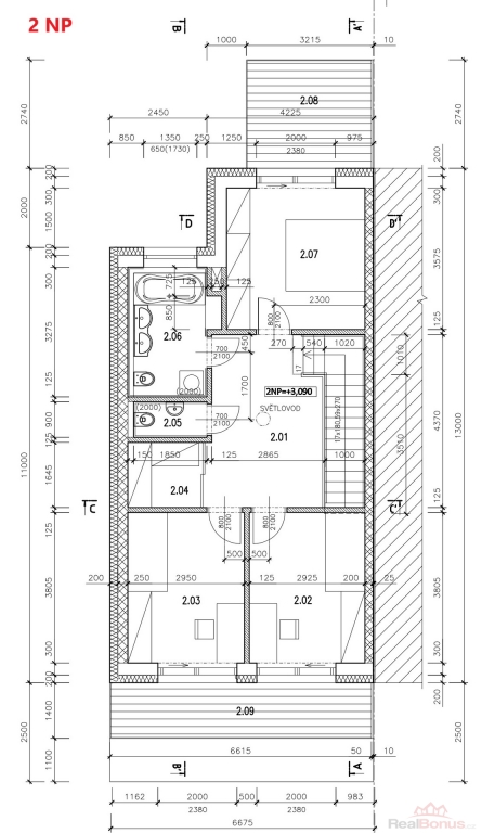
Nový moderní dispozičně zdařilý rodinný dům č. 11 v atraktivní lokalitě, Pasohlávky. Novostavba s užitnou plochou 134 m2 na pozemku o rozloze 214 m2. Dům je energeticky velmi úsporný (třída A) a disponuje třemi terasami o celkové rozloze 34 m2 + dvě parkovací místa. Cihlová konstrukce budovy zaručuje dlouhou životnost a kvalitu. Ideální pro rodinu hledající pohodlné a moderní bydlení v klidné lokalitě s možností relaxace. Neopomeňte si tuto jedinečnou nabídku prohlédnout!
Jedná se o řadový rodinný dům 4+kk na pobřeží Mušovských jezer ve druhé etapě výstavby projektu Rezidence Pasohlávky. Výstavba byla zahájena a stylově bude navazovat na designovou eleganci a kvalitu první úspěšné etapy. Dům nabídne moderní a funkční dispozice, maximálně využitý prostor, dvě parkovací místa a pohodlné bydlení pro celou rodinu. Navržená dispozice může mít několik modifikací, jejich návrhy rádi zašleme, například až na 5+kk.
Zajištěn bude také dostatek užitkové vody pro závlahu a to z retenční nádrže.
Nenechte si ujít příležitost stát se součástí exkluzivního projektu! Pokud hledáte komfortní bydlení, které bude reflektovat váš vkus a výjimečný životní styl, kde se spojí luxus, malebná příroda a slunečné podnebí, pak je Rezidence Pasohlávky tím pravým místem pro vás.
| Cena: |
(za nemovitost) 11 025 750,- Kč
(včetně DPH, včetně provize)
|
|---|
| Druh objektu | cihlová |
|---|---|
| Stav objektu | novostavba |
| Energetická třída | A - Mimořádně úsporná |
| Plocha teras | 34 m² |
| Vybavení | terasa |
| Umístění objektu | centrum |
| Zastavěná plocha | 134 m² |
| Plocha parcely | 218 m² |
| Užitná plocha | 134 m² |
| Charakter okolní zástavby | rekreační |
| Poloha objektu | řadový |




