| Číslo zakázky: | 5575443 | ![]() Karta nemovitosti |
|---|---|---|
| Typ zakázky: | prodej |
STRATEGICKÝ POZEMEK 10 735 m PRO LOGISTIKU / PRŮMYSL U D8 ODOLENA VODA, k prodeji i k pronájmu (pronájem celé plochy nebo její části za 35 Kč/m2/měsíc)
Poloha: Odolena Voda, okres Praha-východ
Celková plocha: 10 735 m
Parcely: 265/6, 265/15, 265/16 (k.ú. Odolena Voda)
Cena: 54.179.545 Kč plus DPH
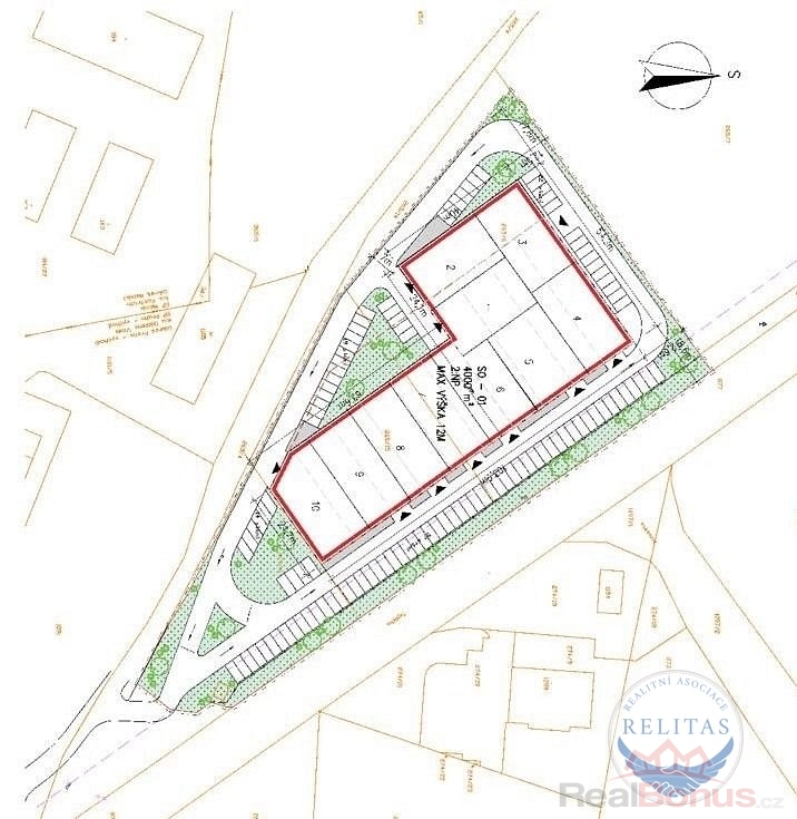
Nabízíme jedinečnou investiční příležitost soubor tří sousedících parcel o celkové ploše 10 735 m, které tvoří kompaktní celek určený pro průmyslovou, logistickou, kancelářskou a obchodní zástavbu. Pozemek se nachází v bezkonkurenční strategické lokalitě s přímým napojením na dálnici D8, ideální pro rychlou logistiku a výrobní aktivity s vazbou na Prahu i mezinárodní koridory.
Územně plánovací regulativy (Plocha VP 6):
Dle platného územního plánu města Odolena Voda (plocha VP 6) je pozemek určen pro Výrobu a skladování průmyslová výroba, s vysokou mírou intenzity využití:
Maximální zastavitelnost: 80 % plochy pozemku.
Přípustné využití: Stavby pro průmyslovou výrobu, sklady, energetická a servisní zařízení, dopravní infrastruktura (parkoviště, garáže).
Doplňkové využití: Lze umístit administrativní, sociální a ubytovací zařízení související s provozem.
Vyloučené využití: Skladování nebezpečných látek a stavby výroben tepla a energie s výkonem nad 1 MW.
Pozemek je aktivně připravován pro zahájení výstavby, přičemž klíčové sítě jsou ve fázi realizace/kolaudace, což zaručuje rychlý start Vašeho projektu:
Voda a Kanalizace: Přípojky budou zkolaudované do konce roku 2025 s garantovanou kapacitou vody 550 m/rok.
Elektřina: Je vydané územní rozhodnutí na výstavbu trafostanice. Elektřina bude přivedena v roce 2026 s garantovanou kapacitou 500 kVA.
Přístup k parcelám je zajištěn přes pozemek obce a Aero Vodochody na základě smluvního souhlasu na dobu neurčitou. Toto právo přechází automaticky na všechny budoucí vlastníky, což poskytuje maximální právní jistotu.
Studie a projektová připravenost: K dispozici jsou dvě podrobné studie na možnou výstavbu živnostenského parku (využívá kombinaci obchodních ploch a služeb pro širokou veřejnost z okolí), obě využívající maximální možnou zastavitelnou plochu.
Pozemek je ideální pro developery a investory hledající lokalitu s vysokou přidanou hodnotou a jasnými regulativy pro okamžitý rozvoj. Je po celém obvodu oplocený kvalitním plotem a má vjezdy ze dvou stran.
Pozemek (tedy 3 pozemky spojené do jednoho celku) je nabízen i k dlouhodobému pronájmu.
Veškeré podrobnosti ohledně studií, stavebních řízení a technických detailů Vám ráda poskytnu.
Volejte, ptejte se, podklady jsou k dispozici u makléřky!
| Cena: |
(za nemovitost) 54 179 545,- Kč
(včetně provize) (včetně právního servisu)
|
|---|
| Vlastní pozemek | 10 735 m² |
|---|---|
| Umístění objektu | nová zástavba |
| Odpad | Městská kanalizace |
| Komunikace | asfaltová |
| Druh pozemku | pro komerční výstavbu |
| Charakter okolní zástavby | komerční |




