
| Číslo zakázky: | 21976 | ![]() Karta nemovitosti |
|---|---|---|
| Typ zakázky: | prodej |
Cena je uvedena včetně provize RK a právního servisu. , Reality 11 Vám zprostředkují exkluzivní prodej rodinného domu v klidné lokalitě plné zeleně v městské části Praze 6 - Dejvice.
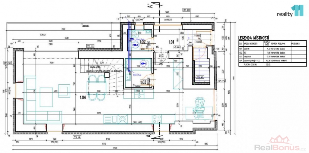
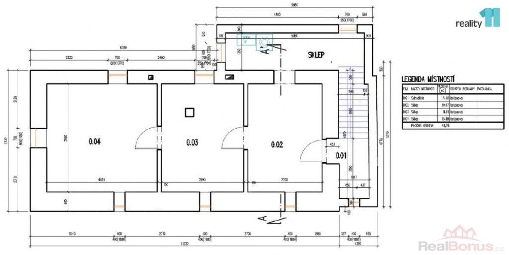
Jedná se o dvoupodlažní dům po kompletní rekonstrukci o velikosti 3+kk a celkové obytné ploše 94 m s prostorným sklepem v 1PP o velikosti 44 m.
V přízemí domu se nachází vstupní chodba, samostatné WC a koupelna s vanou. Dále je zde prostorný a dobře prosvětlený obývací pokoj s kuchyňským koutem (45m) s okny na všechny světové strany a se vstupem na dřevěnou visutou terasu s možností posezení v absolutním klidu.
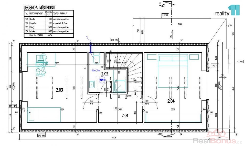
Po schodech nahoru z obývacího pokoje se nachází dva samostatné pokoje (15m a 16m) a druhá koupelna se sprchovým koutem a WC.
V obytných prostorách domu je položena laminátová podlaha a dlažba s příjemným podlahovým vytápěním.
Osazena jsou plastová okna s trojskly a dům je zateplen 16cm polystyrenu, díky tomu se jedná o velmi úsporný dům PENB B.
Pozemek je oplocený s vjezdovými vraty a parkováním pro 2 auta.
Máte.li zájem o prohlídku domu, kontaktujte mě buď emailem nebo na uvedené tel. číslo. Ev. číslo: 21976. Energetický štítek: B (131 kWh/m2/rok).
| Cena: |
(za nemovitost) 15 200 000,- Kč
(Cena je uvedena včetně provize RK a právního servisu.) (včetně provize)
|
|---|
| Počet podlaží objektu | 2 |
|---|---|
| Celková podlahová plocha | 94 m² |
| Druh objektu | cihlová |
| Stav objektu | novostavba |
| Energetická třída | B - Velmi úsporná |
| Vlastní pozemek | 312 m² |
| Umístění objektu | klidná část obce |
| Počet míst k parkování | 2 |
| Zastavěná plocha | 54 m² |
| Užitná plocha | 94 m² |
| Poloha objektu | samostatný |
