| Číslo zakázky: | 31885 | ![]() Karta nemovitosti |
|---|---|---|
| Typ zakázky: | prodej |
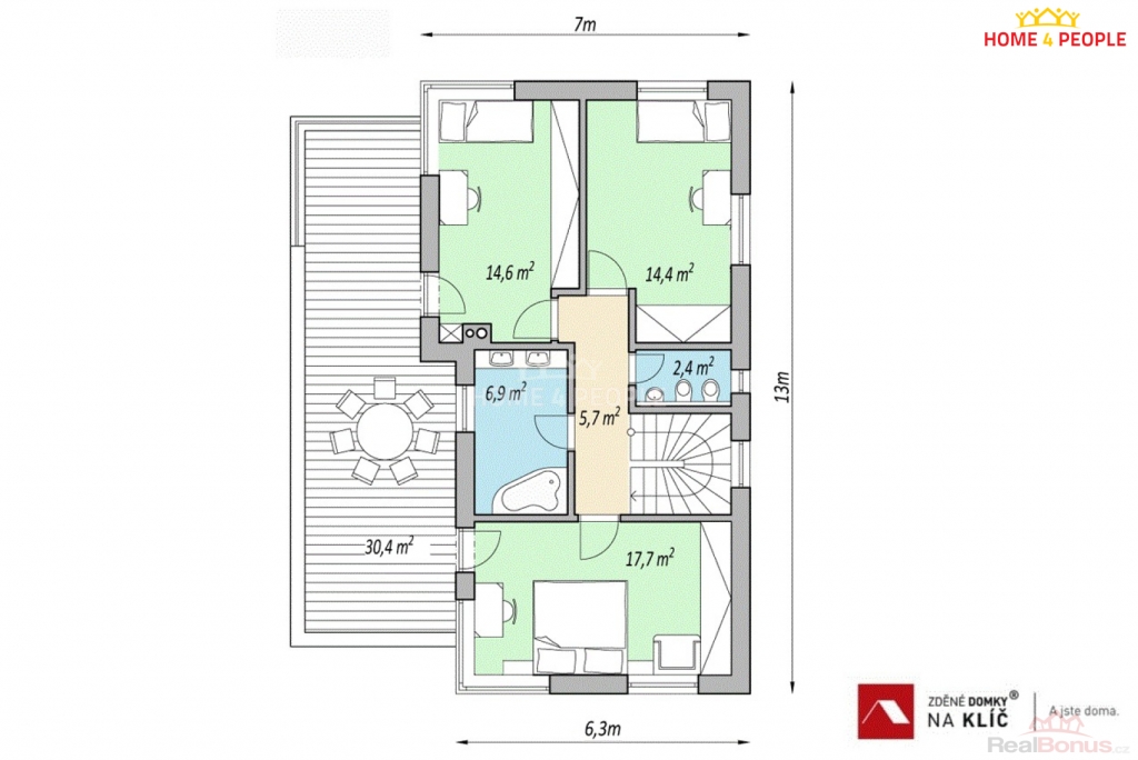
Cena včetně RD na klíč, pozemku, připojení na sítě, provize a DPH, Zprostředkujeme Vám exkluzivní nabídku výstavby patrového rodinného domu typu LOTUS 5+kk v provedení na klíč s terasou, garáží a zahradou v obci Nivnice. Projekt patrového ekonomického domu zajištuje aktuální potřeby dnešní doby se zastavěnou plochou 111 m a užitnou plochou 149 m. Jedná se o kvalitní zděnou stavbu z materiálu Porfix 300. Svojí jednoduchou konstrukcí je předurčený pro rychlou a nekomplikovanou výstavbu. Všechny důležité rozvody jsou koncentrované na jednom místě, což snižuje instalační náklady a poruchovost. Optimální půdorys poskytuje výborný poměr mezi velikostí plochy obvodových stěn a vnitřního prostoru. Minimální plocha obvodových stěn takto šetří náklady nejen při výstavbě, ale i při vytápění domu. Ekonomický dům je navrhnutý tak, aby měsíční provozní náklady na tento dům byly přibližně třikrát nižší než u bytu podobné podlahové výměry. Prostředky ušetřené na provozu můžete použít například na splátky hypotéky. Uvedená cena obsahuje základovou desku, projekt, DPH a stavba bude provedena na klíč a předána k okamžitému užívání. Kolaudace je samozřejmostí. (Součástí ceny není kuchyňská linka a světla dokážeme za zvýhodněných podmínek zajisti přes naše dodavatele). V uvedené ceně můžete počítat také s finálními povrchovými úpravami exteriéru i interiéru, a to včetně elektroinstalací, sanitárního vybavení s bateriemi, interiérovými dveřmi včetně obložek a vytápění bude řešeno teplovodním podlahovým topením v kombinaci tepelného čerpadla se 180L zásobníkem na teplou vodu. Dle dohody změníme systém vytápění nebo vystavíme komín pro krbové kamna nebo pro využití krbové vložky. Kryté garážové stání spojené s domem nebo terasu za příplatek. Pro náročnější klienty máme nabídku nadstandardního vybavení chytré domácnosti, klimatizaci, externí žaluzie, rolety, rekuperaci nebo fotovoltaiku. Úprava dispozice nebo tvaru domu povolena. Délka výstavby od vydání stavebního povolení 12-13 měsíců. Inženýrské sítě v dosahu. Pozemek je rovinatý o výměře 1831 m o rozměrech 27 m široký a 72 m dlouhý a je v územním plánu určený pro výstavbu rodinného bydlení a jeho poloha je situována mezi rodinnými domy. Více u makléře a to včetně dohodnutí se na prohlídce. Také nabízíme možnost si projít naše hotové domy. Změna za jiný dům je možná. Doporučuji. Ev. číslo: 31885. Energetický štítek: A (49 kWh/m2/rok).
| Cena: |
(za nemovitost) 15 399 000,- Kč
(Cena včetně RD na klíč, pozemku, připojení na sítě, provize a DPH)
|
|---|
| Počet podlaží objektu | 2 |
|---|---|
| Celková podlahová plocha | 149 m² |
| Druh objektu | cihlová |
| Stav objektu | ve výstavbě (hrubá stavba) |
| Energetická třída | A - Mimořádně úsporná |
| Vlastní pozemek | 1 831 m² |
| Umístění objektu | klidná část obce |
| Počet míst k parkování | 1 |
| Zastavěná plocha | 111 m² |
| Užitná plocha | 149 m² |
| Poloha objektu | samostatný |




