| Číslo zakázky: | 00055 | ![]() Karta nemovitosti |
|---|---|---|
| Typ zakázky: | prodej |
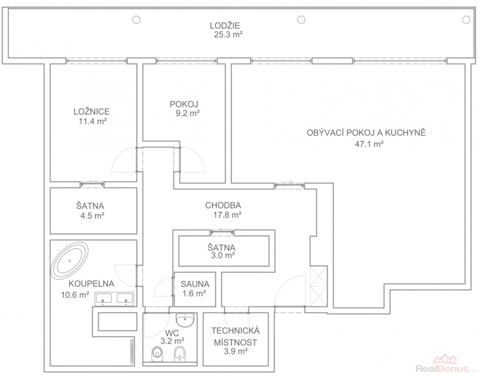
Nabízíme vám unikátní luxusní byt po celkové rekonstrukci na okraji centra Liberce. Byt se nachází v posledním, 6 NP bytového domu, který je je situován v uzavřeném areálu, jehož součástí je venkovní bazén, posilovna, rozlehlá zahrada spolu s dětským hřištěm a altánem určeným ke konání společenských akcí. K dispozici je správce, který má na starost úklid, odklízení sněhu v zimě či sekání porostů. Jedná se o unikátní komplex, který v Liberci nemá obdoby. Tento luxusní, kompletně zrekonstruovaný byt o celkové obytné ploše 147 m2 má dispozici 3+kk. Každý z pokojů má přes francouzské okno vstup na 16 m2 velkou lodžii s výhledem na Ještěd. Dominantou bytu je na zakázku vyrobená industriální kuchyň kombinující materiály kov, beton a dřevo. Kuchyň je vybavena spotřebiči značky Bora, která představuje absolutní špičku na trhu. Nechybí zde dvě vestavné vinotéky, automaticky zavlažované truhlíky na bylinky, výrobník chlazené perlivé vody Grohe aj. Pro teplé dny je majitelům k dispozici venkovní kuchyň umístěná na lodžii. Kuchyň je přímo propojena s jídelní a obývací částí s vlastním barem. Naopak v horkých letních dnech majitelé ocení nejmodernější úsporné invertorové klimatizační jednotky, které mohou zároveň sloužit i k vytápění. V celém bytě je podlahové topení, v bytě jsou také osazena moderní krbová kamna. V bytě se nachází rozlehlá koupelna s volně stojící vanou a velkým sprchovým koutem. Dále je koupelna vybavena dvojitým umyvadlem s led podsvíceným zrcadlem a oddělená toaleta s bidetem. Relaxovat můžete ve vlastní finské sauně umístěné uvnitř bytu. Majitelé bezesporu ocení dvě velké šatny, přičemž jedna je přímo spojená s ložnicí. Celý byt je napojený na chytrou domácnost, je plně ovladatelný na dálku, včetně klimatizace, či topení a je ozvučen kvalitními reproduktory. Byt je připravený k okamžitému bydlení pro tu nejnáročnější klientelu. Po dohodě lze zajistit kompletní servis úklidu, žehlení apod. Možnost odkupu dvou garážových stání v suterénu domu. K dispozici dle dohody, financování hypotéčním úvěrem, ET-C.
| Cena: | (za nemovitost) 13 990 000,- Kč |
|---|
| Dispozice bytu | 3+kk |
|---|---|
| Číslo podlaží v domě | 6 |
| Druh objektu | skeletová |
| Stav objektu | novostavba |
| Energetická třída | C - Úsporná |
| Vlastnictví | osobní |
| Lodžie | 16 m² |
| Bezbariérový byt | ano |
| Umístění objektu | klidná část obce |
| Počet míst k parkování | 2 |
| Užitná plocha | 147 m² |
| Charakter okolní zástavby | obchodní a obytná |




