| Číslo zakázky: | 05431-4 | ![]() Karta nemovitosti |
|---|---|---|
| Typ zakázky: | pronájem |
Chcete bydlet v centru města v novém bytě?
Nabízíme k pronájmu světlý byt umístěný v klidnější uličce z ulice Vídeňská. Byt je orientován na Jih a nachází se ve 2. nadzemním podlaží bytového domu v těsné blízkosti nemocnice U Milosrdných Bratří a tudíž i v blízkosti veškeré občanské vybavenosti.
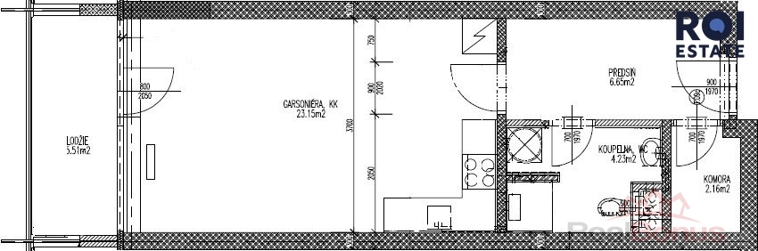
Celková výměra bytu je 41m2 a dispoziční řešení bytu je 1+kk, velkou výhodou je možnost pronájmu venkovního parkovací stání 2 000 Kč/měsíc.
Z prostorné předsíně jsou zvlášť vstupy do, koupelny se sprchovým koutem a toaletou a dále do obývacího pokoje s kuchyňským koutem. Z pokoje je přístupný velký balkon. Byt se pronajímá zařízený kuchyní a vestavěnou skříní v předsíni. Předání probíhá po čerstvé výmalbě na bílo včetně kompletně uklizeného bytu.
Prohlídky jsou možné po domluvě v případě zájmu o prohlídku nás neváhejte kontaktovat.
Byt je k dispozici od 1.3. 2026, případně po domluvě i dříve.
Vybavení bytu nemusí odpovídat zobrazenému stavu na fotografiích.
Tento byt je podnajímán se službou ?Váš Domácí?.
Je to služba, kdy podnájemce automaticky získává:
- plně pojištěný byt s non stop asistenční linkou, kdy pojištění se vztahuje navíc i na odpovědnost za škody způsobené v běžném životě, prodlouženou záruku spotřebičů o 2 roky, a nebo servisní techniky v případě pojistné události (práce zámečníka, opravy havárií).
- zákaznický servis služby ?Váš Domácí? od 9:00 ? 17:00 pro řešení Vašich dotazů a požadavků
- technickou podporu (pro případ, že budete chtít pomoci s technickými záležitostmi na bytě)
- možnost výměny bytu za větší/menší/jinde z portfolia bytů či domů Váš Domácí (Brno, Praha a další města)
Podnajmout si byt nebylo nikdy snazší a efektivnější.
| Cena: |
(za měsíc) 16 490,- Kč
(+2 900 Kč za zálohy na energie a služby, 2 000 Kč parkování +vratná kauce + provize RK)
|
|---|
| Dispozice bytu | 1+kk |
|---|---|
| Číslo podlaží v domě | 2 |
| Počet podlaží objektu | 5 |
| Celková podlahová plocha | 41 m² |
| Druh objektu | cihlová |
| Stav objektu | novostavba |
| Energetická třída | B - Velmi úsporná |
| Vlastnictví | osobní |
| Počet podlaží pod zemí | 1 |
| Plocha teras | 7 m² |
| Bezbariérový byt | ano |
| Vybavení | terasa |
| Telekomunikace | Internet |
| Doprava | silnice MHD autobus |
| Voda | zdroj pro celý objekt dálkový vodovod |
| Odpad | Městská kanalizace |
| Ostatní | Bezbariérový přístup Parkoviště |
| Užitná plocha | 41 m² |
| Inženýrské sítě | Vodovod Kanalizace |
| Charakter okolní zástavby | obchodní a obytná |
| Poloha objektu | rohový |




