| Číslo zakázky: | 00148 | ![]() Karta nemovitosti |
|---|---|---|
| Typ zakázky: | prodej |
Pokud hledáte místo k víkendovému odpočinku , máme pro vás skvělou nabídku rodinného domu v tichém lůně přírody pod hřebeny Rychlebských hor.
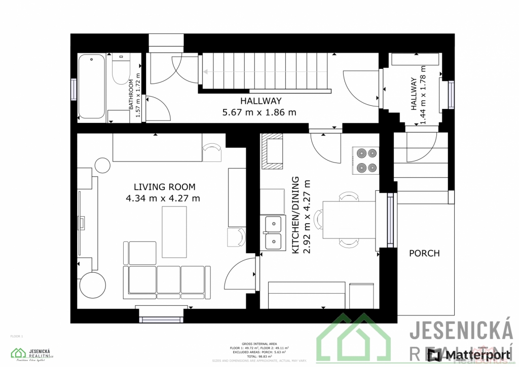
Lokalita je předností této nabídky. Dalším plusem je ideální velikost prostoru domu, není ani velký a ani malý, rozměry jsou vhodné k bydlení, stejně tak k rekreačnímu účelům. Není náročný na úklid a údržbu.V prvním podlaží se nachází kuchyň s obývacím pokojem, koupelnou a WC.
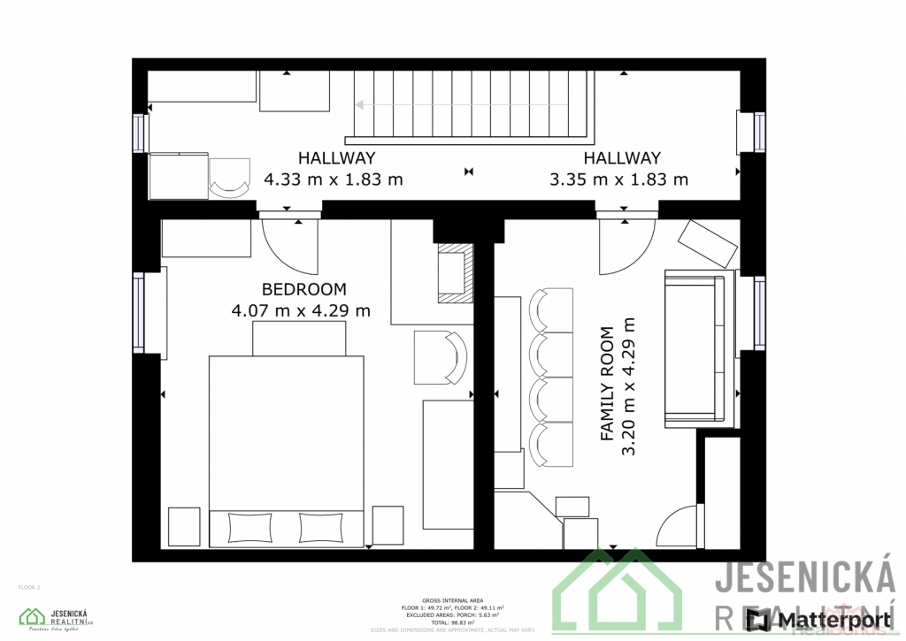
V druhém podlaží naleznete dva pokoje + vchod na půdu, která nabízí skladovací prostory. Obě tyhle podlaží jsou vytápěný krbovými kamny. V prvním podlaží jsou krbová kamna s výměníkem, zde se nabízí možnost vytápět dům centrálně. O ohřev vody se postará el. bojler.
Elektrické rozvody jsou v mědi. Odpadní a vodní rozvody v plastu. Na střeše jsou umístěny solární panely. Dům má i svůj sklep, ve kterém je studna. Studna poskytuje zdroj pitné vody pro celý dům. V roce 2024 došlo k celkovému zateplení domu EPS 200 mm.
K domu náleží pozemek o celkové výměře 333 m2. Zbytek pozemku je v nájmu a v procesu nákupu. Pozemek je celý oplocený a brání tedy vniknutí cizích osob.
Hledáte-li místo, které vám umožní vychutnat klid přírody a být daleko od lidí, případně místo pro váš penzionek , chalupu, kterou budete pronajímat klientům, jenž zavítají do Rychleb, pak je tato nabídka ideální. Přijeďte se podívat !
Dům si můžete rovněž prohlédnout díky naší novince- virtuální prohlídce, která je součástí inzerce. Stanovená je cena k jednání, s vážnými zájemci jsme ochotni se o ceně pobavit.
| Cena: |
(za nemovitost) 2 899 000,- Kč
(Cena k jednání - nabídněte!)
|
|---|
| Číslo podlaží v domě | 1 |
|---|---|
| Druh objektu | cihlová |
| Stav objektu | velmi dobrý |
| Energetická třída | G - Mimořádně nehospodárná |
| Vlastní pozemek | 333 m² |
| Vybavení | sklep |
| Umístění objektu | polosamota |
| Vybaveno | Částečně zařízeno |
| Topení | Lokální - tuhá paliva |
| Zastavěná plocha | 54 m² |
| Plocha parcely | 333 m² |
| Plocha zahrady | 291 m² |
| Druh stavby | rodinný dům, rekreační chalupa, rekreační pozemek |
| Poloha objektu | samostatný |




