| Číslo zakázky: | 653847 | ![]() Karta nemovitosti |
|---|---|---|
| Typ zakázky: | prodej |
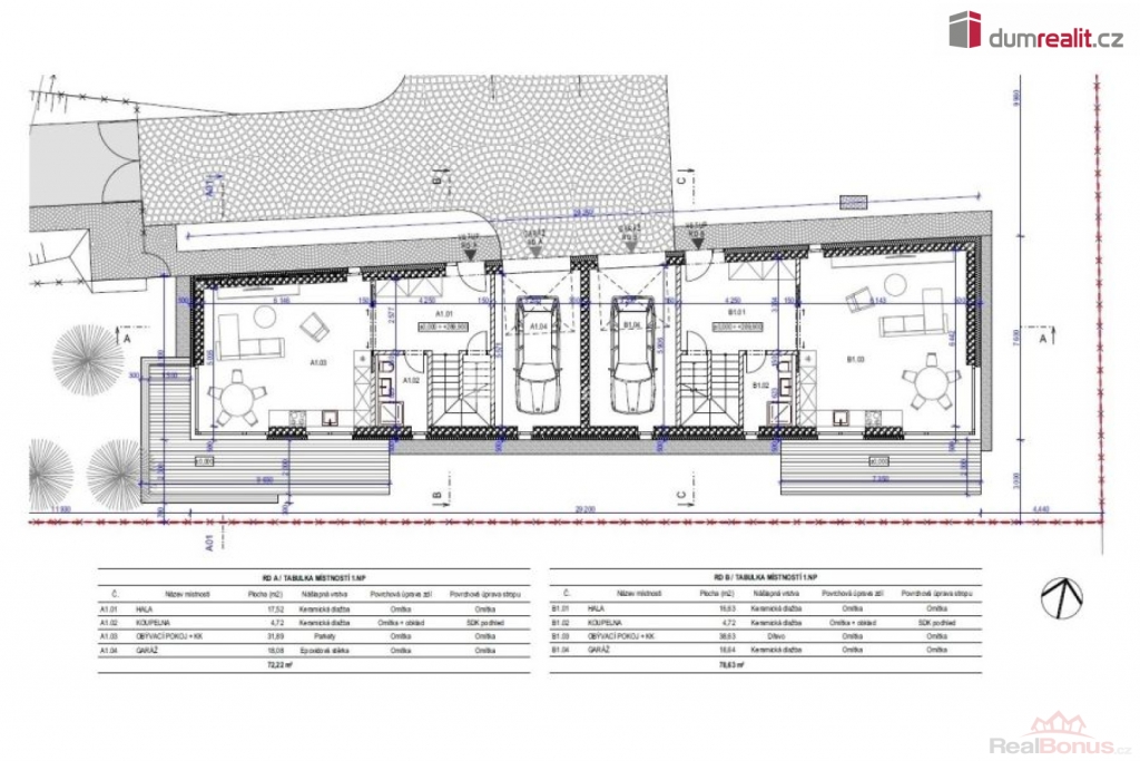
Cena kompletní, včetně provize a právních služeb., Dumrealit.cz Vám zprostředkuje koupi rovinatého stavebního pozemku plochy 909m určeného pro výstavbu dvojdomu o užitné ploše 333,5m, se sklepními prostory 166,1m a střešními terasami plochy 102,2m. Pozemek je obdélníkového tvaru s plánovaným vjezdem z ulice Davídkova, Praha 8. Nachází se na kopci v místě, kde svah pozvolna přechází do roviny. Na výstavbu dvojdomu již bylo v roce 2025 vydáno územní rozhodnutí. Směrově je situován zejména na jih a sever. Dům "A" má užitnou plochu 159,0m, plus sklepní prostory 78,8m a střešní terasy 47,7m. Dům "B" má užitnou plochu 174,5m, plus sklepní prostory 87,3m a střešní terasy 54,5m. Jedná se vždy o dvě obytná nadzemní podlaží a střešní ateliér se dvěma terasami pro každý dům. V 1. NP se nachází hala, koupelna a obývací pokoj s kuchyňským koutem, dále garáž. Ve 2. NP se nachází tři ložnice a prostornější koupelna. Ve 3. NP se nachází střešní ateliér se vstupy na dvě terasy, z nichž bude krásný výhled na Prahu. V celé ploše půdorysu domu je podzemní podlaží s výškou stropu 2,55m se širokým potenciálem využití na kanceláře, skladové prostory, tělocvičnu, posilovnu, herny apod..
V rámci přípravy stavby již byly realizovány přípojky vody, kanalizace a plynu. Vjezd na pozemek je projektován z ulice Davídkova. Pozemek navazuje na zástavbu prvorepublikových rodinných domů. V sousedství se mimo jiné nachází hotel Mazanka ve vlastnictví Akademie věd ČR. V blízkosti je veškerá občanská vybavenost. V docházkové vzdálenosti nákupní centrum Ládví se supermarketem a mnoha obchody, stanice metra, tramvají a autobusů. Na procházky je vhodný Přírodní park Okrouhlík nebo nedaleký Ďáblický háj. Autem lze v krátkých časových intervalech dojet po celé Praze či využít tunelu Blanka se spojením na důležité výpadovky z Prahy. Lokalitu lze považovat za širší centrum Prahy. Pozemek je situovaný na náhorní plošině s atraktivním výhledem. Součástí prodeje je předání výkresové dokumentace objektu pro územní rozhodnutí včetně již vydaného územního rozhodnutí s nabytím právní moci. Pro další informace neváhejte kontaktovat makléře. Ev. číslo: 653233. Energetický štítek: B
| Cena: |
na vyžádání v RK (Cena kompletní, včetně provize a právních služeb.) (včetně provize)
|
|---|
| Energetická třída | B - Velmi úsporná |
|---|---|
| Vlastní pozemek | 909 m² |
| Umístění objektu | klidná část obce |
| Topení | Lokální - plynové |
| Odpad | Městská kanalizace |
| Plyn | Zaveden |
| Druh pozemku | pro bydlení |




