| Číslo zakázky: | 81070 | ![]() Karta nemovitosti |
|---|---|---|
| Typ zakázky: | pronájem |
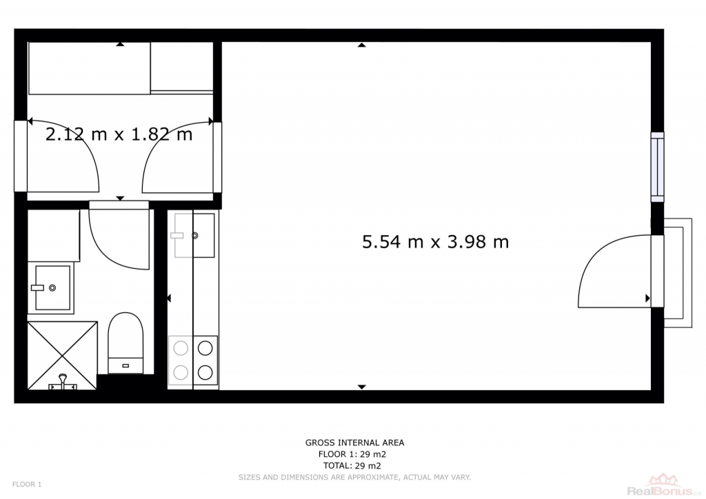
Exkluzivně nabízíme k pronájmu velmi hezký, kompletně zařízený, družstevní byt o dispozici 1+kk v žádané lokalitě Hostivic, ulice Školská. Byt o výměře 28,06 m2 se nachází v 2.NP cihlového bytového domu. Byt je tvořen předsíní s vchodem do hlavní obytné místnosti s francouzským oknem a kuchyní a také do koupelny s WC a sprchovým koutem. Kuchyňská linka je včetně sklokeramické desky, elektrické trouby a lednice, v předsíni je vestavná skříň, v koupelně pračka. Byt se pronajímá kompletně zařízený ( pouze bez TV) včetně nádobí atd.. Poplatky spojené s bytem jsou ve výši 2.400,- Kč/osobu ( teplá a studená voda, společné prostory, komunální odpad, vytápění) + převod elektřiny cca 800,- Kč. Kauce 20.000,- Kč. Provize RK. Dům se nachází hned vedle parku, kde protéká Litovický potok, dále se zde nachází několik dětských hřišť a posezení v zeleni. Byt je v dochozí vzdálenosti do centra města, kde je veškerá občanská vybavenost - škola, školka, LIDL a další obchody. Výborná dopravní dostupnost autobusem na metro Zličín 10 minut, autobusová zastávka se nachází 5 minut chůze od domu. K nastěhování 1.1.2026, prohlídky možné ihned. Pro další informace nebo prohlídku kontaktujte makléře.
| Cena: |
(za měsíc) 15 500,- Kč
(+ poplatky cca 3.100,- Kč. Kauce 20.000,- Kč. Provize RK 15.500,- Kč., cena k jednání)
|
|---|
| Dispozice bytu | 1+kk |
|---|---|
| Číslo podlaží v domě | 2 |
| Celková podlahová plocha | 28 m² |
| Druh objektu | cihlová |
| Stav objektu | velmi dobrý |
| Energetická třída | C - Úsporná |
| Vlastnictví | osobní |
| Umístění objektu | centrum |
| Telekomunikace | Internet |
| Doprava | dálnice silnice autobus |
| Voda | dálkový vodovod |
| Odpad | Městská kanalizace |
| Užitná plocha | 28 m² |
| Inženýrské sítě | Vodovod Kanalizace |
| Charakter okolní zástavby | obytná |
| Poloha objektu | samostatný |
| K dispozici od | 01.01.2026 |




