| Číslo zakázky: | 00904-2 | ![]() Karta nemovitosti |
|---|---|---|
| Typ zakázky: | prodej |
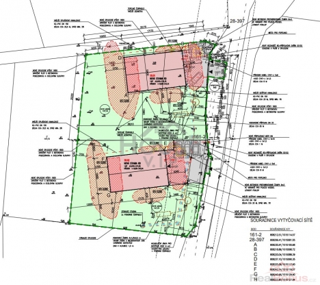
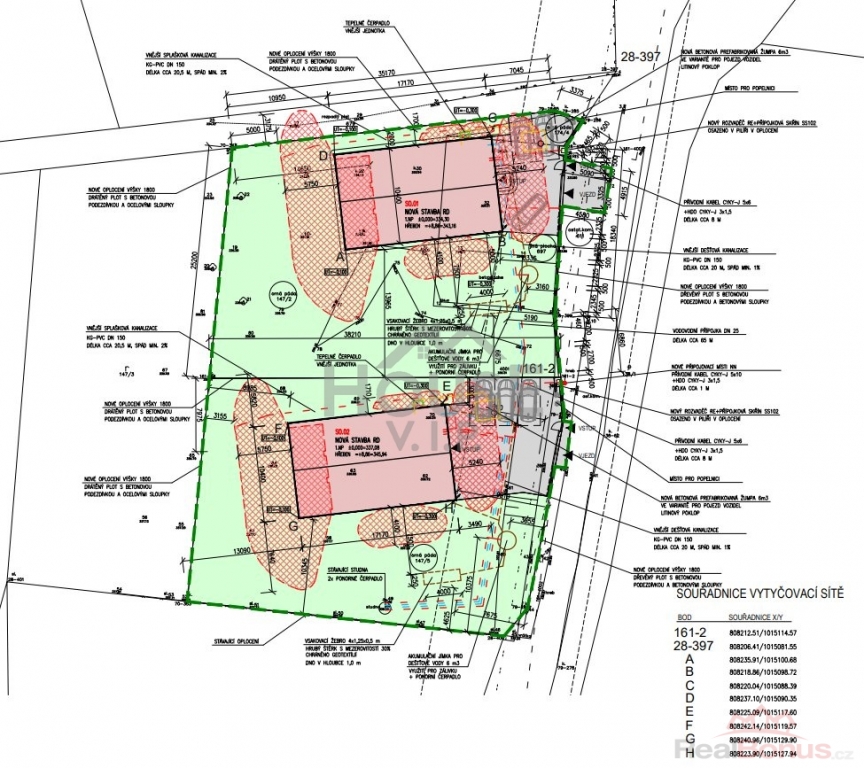
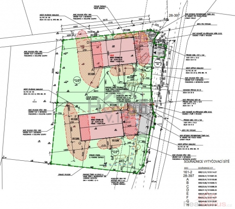
Nabízíme k prodeji slunný stavební pozemek o výměře 1 000 m2 v klidné části obce Podbořany s krásným výhledem do zeleně. Součástí prodeje je projekt moderního rodinného domu 4+kk o užitné ploše 194 m2, jehož realizace bude provedena přímo současným vlastníkem pozemku ? stavební firmou s dlouholetou zkušeností v oboru. Schválení stavebního povolení očekáváme koncem roku 2025.
Podmínka koupě:
Realizace stavby může být provedena vlastníkem pozemku s rozsáhlými zkušenostmi s výstavbou podobných projektů, který zajistí kompletní výstavbu od základů až po dokončení, dle domluveného rozsahu a standardu. Je také možné koupit pozemek ihned s hotovým projektem za uvedenou cenu a realizovat projekt svépomocí.
Cena zahrnuje: pozemek 1 000 m2.
Za příplatek je realizace hrubé stavby (základy, nosné konstrukce, střecha, zateplení, okna, dveře, schodiště) + možnost dokončení na klíč dle vizualizace nebo individuálních požadavků.
Financování stavby je možné rozdělit na jednotlivé etapy, takže celou částku nemusíte platit najednou.
Hlavní parametry plánované stavby:
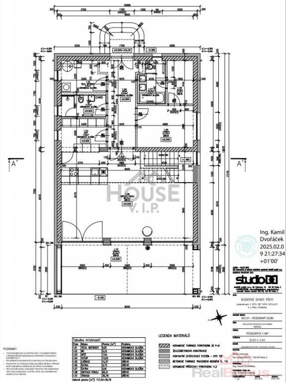
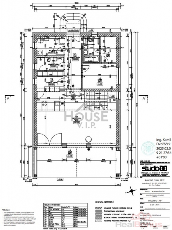
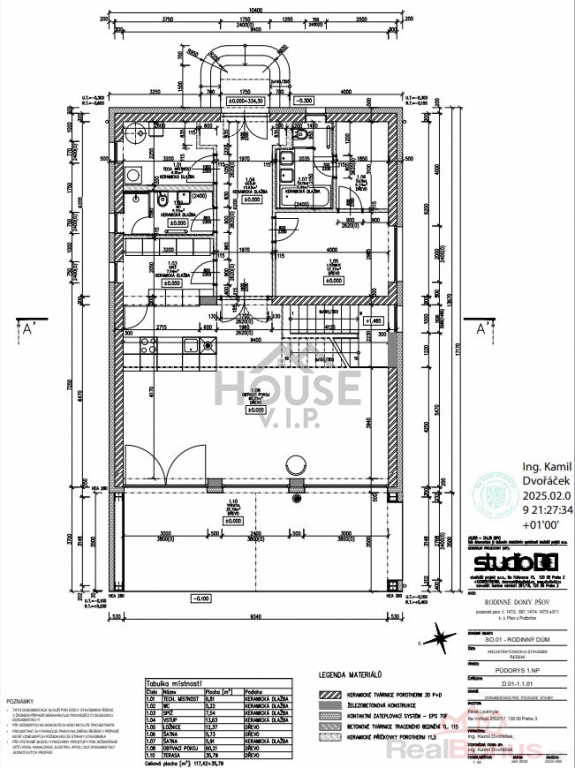
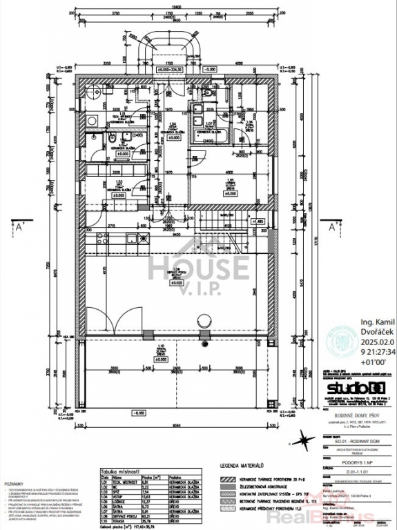
Zastavěná plocha: 178,57 m2.
Podlahová plocha: 194,25 m2.
?? 1. NP: 117,42 m2 + terasa 35,79 m2.
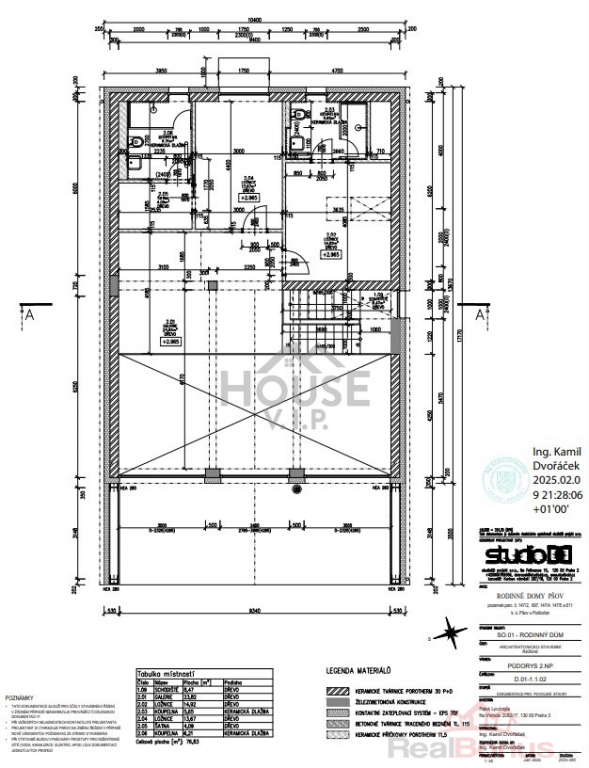
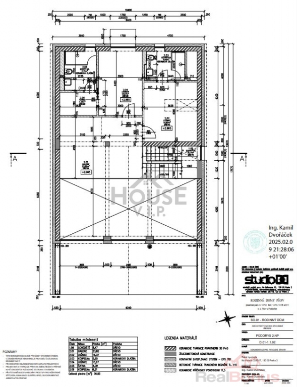
?? 2. NP: 76,83 m2.
Výška stavby: 8,86 m.
Lokalita: tichá část obce, 350 m od zastávky autobusu směr Žatec.
Plná občanská vybavenost v Podbořanech, dobrá dostupnost do větších měst.
Projekt domu navržen s důrazem na kvalitu materiálů, energetickou úspornost a komfortní bydlení.
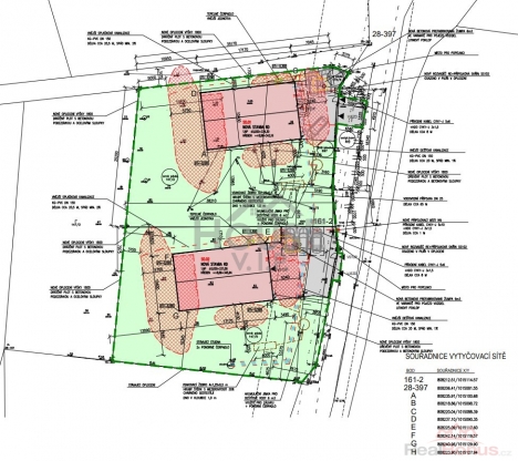
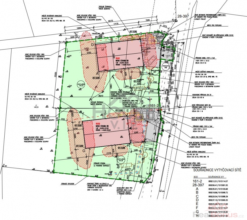
Bonus: na prodej je také sousední pozemek o stejné výměře 1 000 m2 se stejnou možností realizace.
Konstrukce: dutinové keramické tvárnice, železobetonový monolitický strop (250 mm).
Vytápění: tepelné čerpadlo + krbová vložka.
Další technologie: fotovoltaika, domovní ČOV, přípojka vody ze stávající studny.
Energetická náročnost:
Plánovaný PENB třídy "A" ? nízkoenergetický až pasivní dům s velmi nízkými provozními náklady.
Pokud hledáte krásný pozemek s jistotou profesionální a kvalitní realizace moderní stavby, tato nabídka je ideální kombinací investice a budoucího komfortního bydlení.
| Cena: |
(za nemovitost) 2 490 000,- Kč
(včetně DPH, včetně provize, včetně právního servisu)
|
|---|
| Odpad | ČOV pro celý objekt |
|---|---|
| Plocha parcely | 1 001 m² |
| Druh pozemku | pro bydlení |
| Poloha objektu | samostatný |




