| Číslo zakázky: | D/RSB/178/23-26 | ![]() Karta nemovitosti |
|---|---|---|
| Typ zakázky: | pronájem |
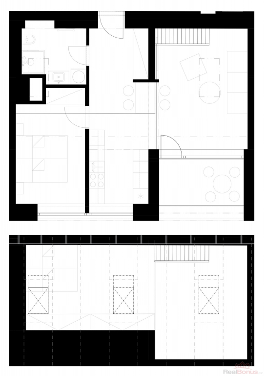
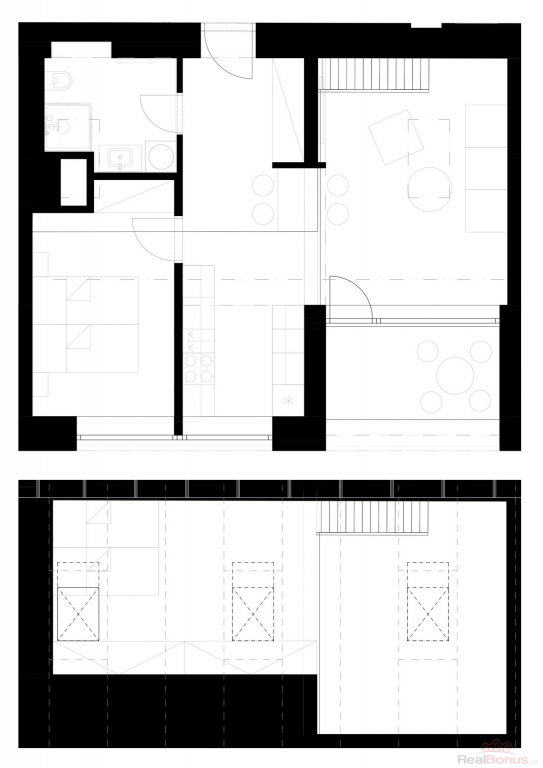
Ve výhradním zastoupení majitele nabízíme k pronájmu kompletně zrekonstruovaný moderní mezonetový apartmán 2+1 (67 m2) s terasou (5,9 m2), který se nachází v polyfunkčním objektu na ulici Koliště. Byt je ideální pro ty, kteří chtějí bydlet v centru a využívat veškeré výhody městského života. V bezprostředním okolí najdete kavárny, obchody, MHD i kulturní vyžití.
Apartmán se pronajímá částečně vybavený ? k dispozici je nová kuchyňská linka s elegantní kombinací černé a dřeva, včetně spotřebičů (myčka, lednice, varná deska, trouba, mikrovlnka). K dispozici jsou zde nevybavené prostory, které můžete využít dle své fantazie a tvořivosti. Koupelna je moderní a prostorná ? sprchový kout, umyvadlová skříňka, toaleta a pračka.
Historie a moderní design v jednom:
Během rekonstrukce polyfunkčního domu byl zachován jeho původní charakter ? historické klenby u vstupu, obloukové schodiště i reprezentativní pasáž Koliště, která celému objektu dodává prestižní atmosféru. V interiérech domu byly použity kvalitní a nadčasové materiály, které zajišťují dlouhou životnost a nízké nároky na údržbu.
Finanční podmínky:
Nájemné: 22 000 Kč
Energie a služby: 7 000 Kč
Vratná kauce: 1× měsíční nájem + energie.
Kalkulace pro 2 lidi.
Provize kanceláři: 1x nájem + DPH
Byt je volný od dubna 2026.
Majitelka preferuje dlouhodobý pronájem a spolehlivé, klidné nájemníky.
FOR ENGLISH - please do not hesitate to contact the real estate agent!
| Cena: |
(za měsíc) 22 000,- Kč
(+ energie a služby)
|
|---|
| Dispozice bytu | 2+1 |
|---|---|
| Číslo podlaží v domě | 5 |
| Celková podlahová plocha | 66 m² |
| Druh objektu | cihlová |
| Stav objektu | po rekonstrukci |
| Energetická třída | G - Mimořádně nehospodárná |
| Vlastnictví | osobní |
| Plocha teras | 5 m² |
| Vybavení | terasa |
| Umístění objektu | centrum |
| Telekomunikace | Internet |
| Topení | Ústřední - dálkové |
| Doprava | silnice MHD autobus |
| Voda | dálkový vodovod |
| Odpad | Městská kanalizace |
| Užitná plocha | 66 m² |
| Komunikace | asfaltová |
| Inženýrské sítě | Vodovod Kanalizace |
| Poloha objektu | řadový |
| K dispozici od | 01.04.2026 |




