| Číslo zakázky: | 972139 | ![]() Karta nemovitosti |
|---|---|---|
| Typ zakázky: | pronájem |
Obchodní prostor je ideální k využití na prodejní showroom včetně zázemí, nebo fitness centrum.
Klimatizovaný obchodní prostor tvoří z 90% prosklené plochy se dvěmi balkony, zázemí WC, sklad.
Obchodní prostor má dva vstupy, jeden vstup z parkoviště od obchodního domu Lidl a druhý vstup od vlastního parkoviště od benzínové pumpy OMV, velkou výhodou je možnost využívání výtahu.
Přípojky: objekt je vytápěn ústředním topením pomocí plynového kotle, ohřev vody el bojler. Možno umístění obchodních reklam na objektu.
Jedná se o velmi frekventovanou ulici. Obchodní prostory jsou ihned k dispozici.
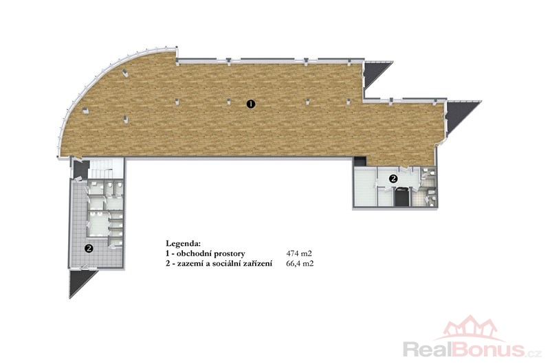
Celková plocha obchodní prostor 474 m2 a zázemí o výměře 66,4m2. Sjednejte si prohlídku na této velice lukrativní nabídce pronájmu!
| Cena: | (za měsíc) 60 000,- Kč |
|---|
| Číslo podlaží v domě | 3 |
|---|---|
| Druh objektu | cihlová |
| Stav objektu | dobrý |
| Energetická třída | G - Mimořádně nehospodárná |
| Vlastnictví | osobní |
| Vybaveno | Nezařízeno |
| Doprava | vlak |
| Odpad | Městská kanalizace |
| Plyn | Zaveden |
| Užitná plocha | 540 m² |
| Nebytové prostory | 540 m² |
| Druh prostor | Obchodní |
