| Číslo zakázky: | 25043 | ![]() Karta nemovitosti |
|---|---|---|
| Typ zakázky: | prodej |
!!SLEVA!! z 6.490.000 Kč na 5.490.000 Kč
Prodej prvorepublikového domu (polovina dvojdomku) ve vilové čtvrti Klíše. Dům je před rekonstrukcí, se zpracovaným projektem. Stavební povolení je těsně před vydáním. Dům stojí v klidné ulici Cestička.
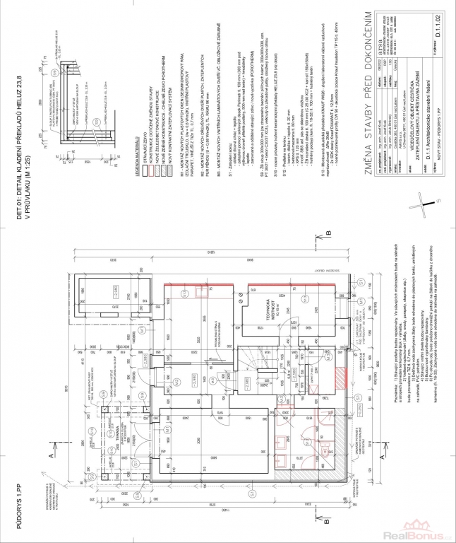
Dům má celkem tři nadzemní podlaží a půdu, přičemž dvě podlaží jsou přístupná vchodem z ulice a jedno podlaží je přístupné samostatným vchodem ze zahrady, které lze využít jako technické zázemí domu nebo po úpravách jako samostatný byt. V projektu se počítá s vybudováním dvou vlastních stání pro vozidla na pozemku, případně lze vytvořit další přímo před domem.
Stávající podlahová plocha 1. NP je cca 58 m2, 2. NP je cca 64 m2, 3. NP je cca 51 m2 a půdy cca 51 m2. Jednotlivá patra jsou přístupná z centrálního schodiště. Kuchyň a koupelna v obou patrech mají okna na severní stranu do ulice, obývací pokoj a ložnice mají okna situovaná na jihovýchodní, slunnou stranu.
V novém projektu se počítá s podlahovou plochou 1. NP (v úrovni zahrady pozemku) o cca 58 m2. Skládá se z centrální chodby, předsíně, koupelny, která zároveň slouží jako technická místnost, šatny, kuchyně s jídelnou a obývacího pokoje. Jídelna a obývací pokoj mají okna do zahrady ve vnitrobloku. Projekt počítá s vybudováním terasy o cca 6,5 m2, orientovanou do zahrady, na kterou se vchází z obývacího pokoje v 1. NP.
Podlahová plocha 2. NP je cca 64 m2, skládá se ze vstupní předsíně, chodby, samostatné toalety, a dvou pokojů, přičemž z jednoho je vstup o podlahové ploše cca 7,4 m2.
Podlahová plocha 3. patra je cca 51,6 m2, skládá se z hlavní bytové koupelny, samostatné toalety, průchozího pokoje s podlahovou plochou cca 13,6 m2, ze kterého se vstupuje do neprůchozího pokoje o podlahové ploše cca 19,3 m2. Nabízí se možnost vytvořit výstup z tohoto pokoje a na střeše relaxačního prostoru si vytvořit terasu o velikosti cca 15 m2, ze které by byl výhled do vnitrobloku a na pohoří obklopující Ústí nad Labem. Celková plocha je cca 224 m2 včetně 51 m2 půdy.
Je možné alternativně vybudovat v 1. NP a 2. NP mezonetový byt se zahradou a v 3.NP a půdě samostatný menší byt s vlastním vchodem.
Plocha zahrady je cca 281 m2, její velkou výhodou je umístění za domem, které díky převýšení kryje před pohledy z ulice a orientace na jihovýchodní stranu, díky tomu je prakticky celý den oslněná slunečními paprsky.
Rekonstrukce zateplení, opláštění, otvorových výplní, mezipatrových izolací a zdroje vytápění je vhodná pro čerpání podpory z programu Nová zelená úsporám.
Dům prozatím nemá vyhotovený průkaz energetické náročnosti, proto je uváděna třída G.
| Cena: | (za nemovitost) 5 490 000,- Kč |
|---|
| Počet podlaží objektu | 3 |
|---|---|
| Celková podlahová plocha | 224 m² |
| Druh objektu | cihlová |
| Stav objektu | před rekonstrukcí |
| Energetická třída | G - Mimořádně nehospodárná |
| Vlastní pozemek | 281 m² |
| Umístění objektu | klidná část obce |
| Doprava | vlak |
| Odpad | Městská kanalizace |
| Užitná plocha | 224 m² |
| Plocha zahrady | 281 m² |
| Komunikace | asfaltová |
| Poloha objektu | řadový |
