| Číslo zakázky: | 377 | ![]() Karta nemovitosti |
|---|---|---|
| Typ zakázky: | prodej |
Nabízíme k prodeji pozemek, na kterém je postaven rodinný dům určený k demolici nebo ke kompletní rekonstrukci, situovaný na atraktivní adrese Všerubská 332/12, Praha 5 Řeporyje.
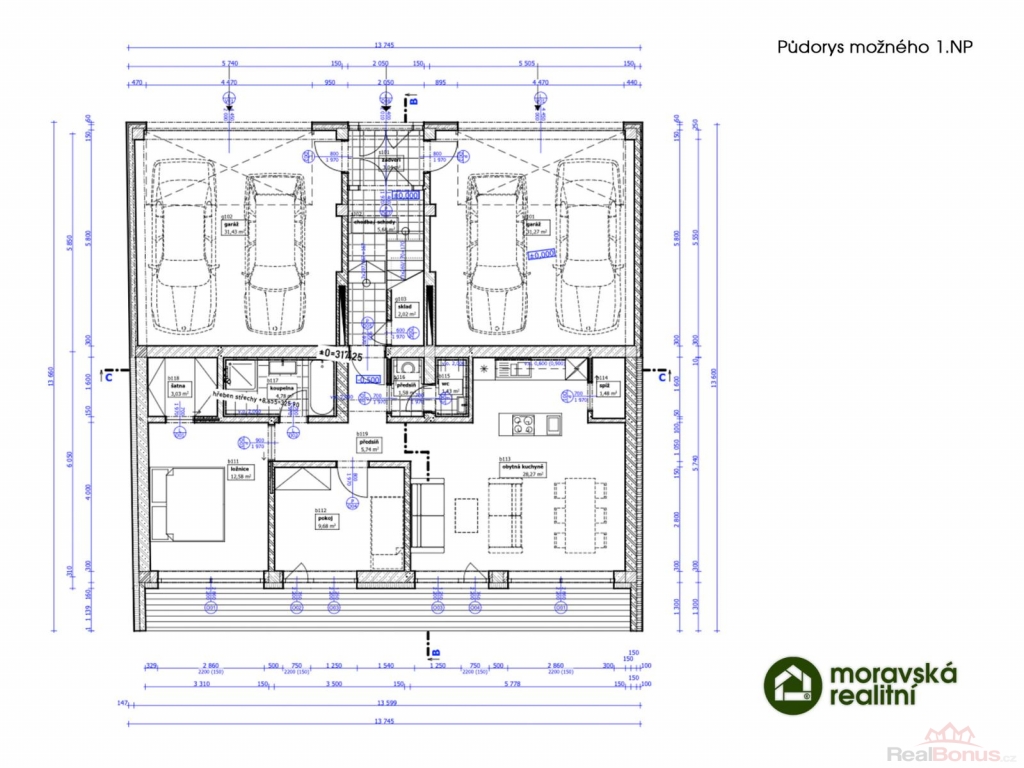
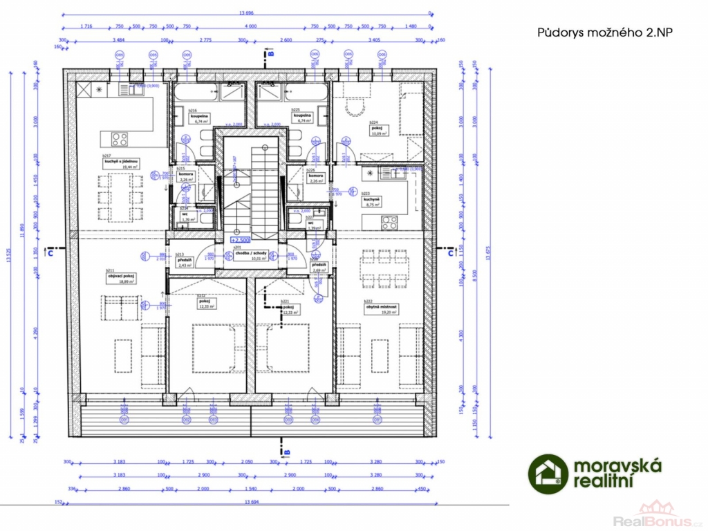
V současné chvíli je zpracována předběžná studie na výstavbu bytového domu o pěti bytových jednotkách, která počítá s garáží pro 4 vozy a dalším parkováním na pozemku pro 4 automobily s vjezdem z ulice Lubenecká. Ke studii je k dispozici předběžné vyjádření stavebního úřadu. Ve fotografiích naleznete možné půdorysy všech tří nadzemních podlaží.
Dle dostupných informací jsou na pozemku k dispozici inženýrské sítě: elektřina, voda a kanalizace. Plyn se nachází v komunikaci před domem. Dům je v současném stavu neobyvatelný.
Nemovitost představuje zajímavou investiční příležitost v klidné lokalitě Prahy s dobrou dostupností do centra města a plnou občanskou vybaveností v okolí.
Stávající RD má 2 nadzemní podlaží a podkroví.
Uvedená užitná plocha je orientační.
Pro více informací, kompletní podklady k předběžné studii a sjednání prohlídky kontaktujte makléře realitní kanceláře přes kontaktní formulář níže.
Energetická náročnost budovy (PENB): štítek nebyl dodán, proto uvádíme třídu G.
Financování i právní servis zajistíme zdarma.
Veškeré uvedené údaje mají informativní charakter a nepředstavují nabídku ve smyslu § 1731 a § 1732 občanského zákoníku ani veřejný příslib dle § 1733 občanského zákoníku.
| Cena: |
na vyžádání v RK (Pro více informací o ceně kontaktujte RK.)
|
|---|
| Číslo podlaží v domě | 1 |
|---|---|
| Počet podlaží objektu | 1 |
| Energetická třída | G - Mimořádně nehospodárná |
| Vlastní pozemek | 506 m² |
| Umístění objektu | klidná část obce |
| Elektřina | 230 V |
| Plyn | Zaveden |
| Zastavěná plocha | 124 m² |
| Plocha parcely | 506 m² |
| Plocha zahrady | 506 m² |
| Druh pozemku | pro bydlení |
| Inženýrské sítě | Vodovod Kanalizace Plyn Elektřina |
