| Číslo zakázky: | 653459 | ![]() Karta nemovitosti |
|---|---|---|
| Typ zakázky: | pronájem |
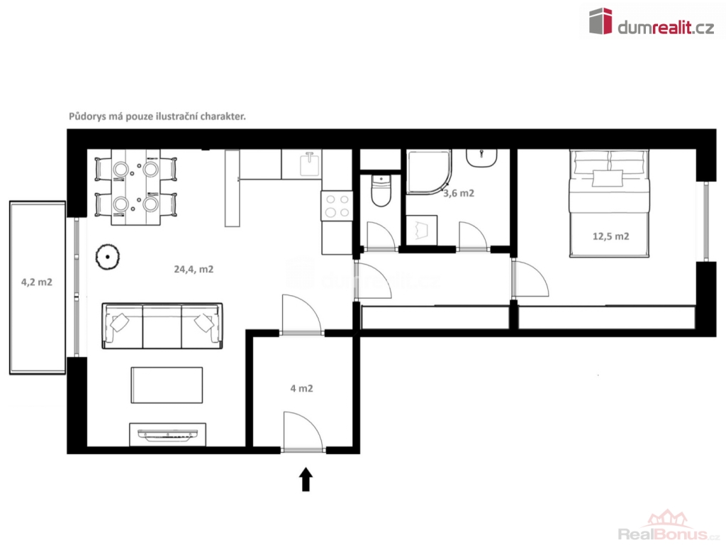
+popl. 2300, + elektřina. Kauce 30.000,-, odměna RK 16.000,-., Dumrealit.cz Vám zprostředkuje pronájem bytu 2+kk s balkonem, o 56 m, ve druhém patře patře třípatrového zděného domu bez výtahu, v klidné části Českého Krumlova, ul. Vyšenská, sídliště Vyšný.
Nadstandardní byt prošel v nedávné době kompletní revitalizací a nabízí se k pronájmu bez vybavení/nábytku. Sestává ze zádveří, obýváku o 24,4 m s moderní kuchyňskou linkou s dostatkem prostoru pro jídelní stůl a s přístupem na balkon o cca 4,2 m, úplně nové koupelny se sprchovým koutem, umyvadlem s místem pro pračku, chodby s vestavěnou skříní a ložnice o o cca 12,5 m.
Dům je průběžně udržovaný, klidný. Bezproblémové parkování na veřejném parkovišti před domem. Zastávka MHD 258 m od domu.
Měsíční nájem činní 13.700,- plus 2.300,- jako zálohová platba na vodu, TUV a topení, s termínem platby v měsíci předcházejícím, plus elektřina na samostatnou smlouvu nájemníka s dodavatelem (E.ON). Kauce 30.000,-, odměna RK za zprostředkování příležitosti uzavřít Smlouvu o nájmu 16.000,-. Byt je vhodný spíše pro menší počet osob 1-3. Volné po dohodě Ev. číslo: 652845. Energetický štítek: B (74 kWh/m2/rok).
| Cena: |
(za měsíc) 13 700,- Kč
(+popl. 2300, + elektřina. Kauce 30.000,-, odměna RK 16.000,-.)
|
|---|
| Dispozice bytu | 2+kk |
|---|---|
| Číslo podlaží v domě | 3 |
| Počet podlaží objektu | 4 |
| Celková podlahová plocha | 56 m² |
| Druh objektu | cihlová |
| Stav objektu | velmi dobrý |
| Energetická třída | B - Velmi úsporná |
| Vlastnictví | družstevní |
| Vybavení | balkon |
| Vybaveno | Nezařízeno |
| Užitná plocha | 56 m² |




