| Číslo zakázky: | 5413BL023 | ![]() Karta nemovitosti |
|---|---|---|
| Typ zakázky: | pronájem |
Nabízíme k pronájmu krásný byt 2+1 po rekonstrukci v žádané a klidné lokalitě na ulici Dvorská v Blansku. Byt je světlý, prostorný a nachází se v dobře dostupné části města s kompletní občanskou vybaveností.
Dispozice a vybavení:
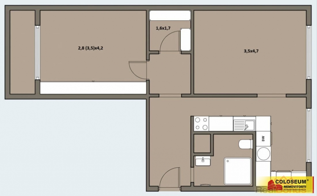
Obývací pokoj ? 16 m2
Ložnice ? 14,5 m2 (s velkou vestavěnou šatní skříní)
Kuchyň ? 11,8 m2 (nová kuchyňská linka)
Koupelna + WC ? 3,5 m2 (nově zrekonstruované)
Komora ? 3 m2
Sklep ? 3,2 m2
Kočárkárna v domě
Nájem činí 17.000,-Kč/měsíc, zálohy - ústřední topení 2.400,-Kč, vodné + stočné 1.000,-Kč, úklid 170,-Kč, 2× vratná kauce, plyn a elektřinu si přepíše nájemce na sebe.
Doprava a okolí:
Blansko (České dráhy) ? vlakové spojení do Brna a okolí
Město nabízí také i střední školy, sportovní a kulturní zařízení, v pěší dostupnosti je také drogerie, obchod s potravinami i velký supermarket. Pro nejmenší a rodiny - mateřské centrum Veselý Paleček, z.s., MŠ i ZŠ.
Pro více informací nebo prohlídku kontaktujte realitní makléřku.
| Cena: | (za měsíc) 17 000,- Kč |
|---|
| Dispozice bytu | 2+1 |
|---|---|
| Číslo podlaží v domě | 1 |
| Celková podlahová plocha | 61 m² |
| Druh objektu | cihlová |
| Stav objektu | dobrý |
| Energetická třída | G - Mimořádně nehospodárná |
| Vlastnictví | osobní |
| Doprava | vlak silnice MHD autobus |
| Užitná plocha | 61 m² |
| K dispozici od | 01.01.2026 |
