| Číslo zakázky: | 229665 | ![]() Karta nemovitosti |
|---|---|---|
| Typ zakázky: | prodej |
Prodej domu s užitnou plochou 135 m2 na rovinatém pozemku o výměře 655 m2 v nově vzniklé čtvrti Zelené Doubravice. Lokalita plná zeleně les a přírodní památka U Pohránovského rybníka za plotem, přitom veškeré služby města pár minut autem či MHD.
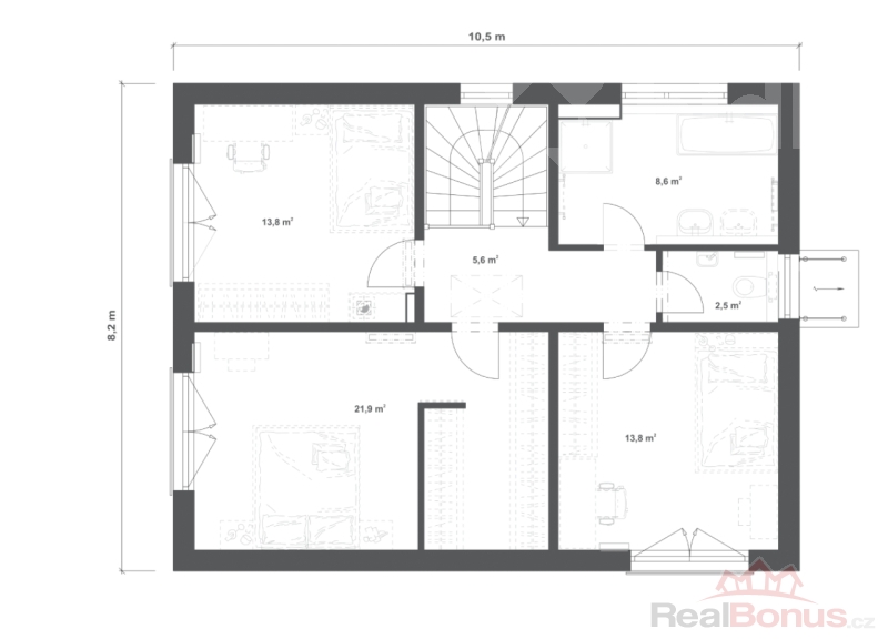
Tento kompaktní dům s moderním designem nabízí promyšlenou otevřenou dispozici s velkými prosklenými plochami, které se rozprostírají přes obě podlaží, tím přinášejí dostatek světla do obývací, jídelní i kuchyňské části. Velké prosklené dveře vedou přímo na prostornou terasu, což je ideální místo pro relaxaci a společenská setkání. V horním patře se nachází ložnice s krásným výhledem a další dvě prostorné místnosti, které poskytují klid a naprosté soukromí.
Mimořádně úsporný dům plný moderních technologií, kde tepelné čerpadlo vzduch - vzduch v zimě dům vyhřeje, v létě zase ochladí, a fotovoltaická elektrárna systém ON GRID s akumulací do zásobníku TUV: využívá sluneční energii pro ohřev užitkové vody v 200 litrovém zásobníku.
Dům nabízíme v provedení 5+kk a Vám stavbu dodá RD Rýmařov.
Tento dům dokonale spojuje moderní estetiku s praktickými potřebami rodiny, což z něj činí skvělou volbu pro pohodlné rodinné bydlení.
Zelené Doubravice - místo, kde děti běhají bez obav venku s kamarády a sousedé se znají jménem.
Pokud hledáte moderní rodinné bydlení s nízkými provozními náklady v lokalitě plné zeleně a nebo výhodnou investici, neváhejte a sjednejte si schůzku.
| Cena: |
(za nemovitost) 12 861 760,- Kč
(včetně provize a právních služeb)
|
|---|
| Druh objektu | dřevěná |
|---|---|
| Stav objektu | novostavba |
| Energetická třída | B - Velmi úsporná |
| Vlastnictví | osobní |
| Vlastní pozemek | 655 m² |
| Vybavení | zahrada |
| Vybaveno | Nezařízeno |
| Doprava | vlak silnice MHD autobus letiště |
| Voda | dálkový vodovod |
| Odpad | Městská kanalizace |
| Plyn | Není |
| Občanská vybavenost | Škola Školka Zdravotnická zařízení Pošta Supermarket Kompletní síť obchodů a služeb Restaurace Místní úřad Kulturní zařízení Koupaliště |
| Zastavěná plocha | 87 m² |
| Plocha parcely | 655 m² |
| Ostatní | Plot |
| Užitná plocha | 135 m² |
| Poloha objektu | samostatný |
| K dispozici od | 29.05.2025 |




