| Číslo zakázky: | 232995 | ![]() Karta nemovitosti |
|---|---|---|
| Typ zakázky: | pronájem |
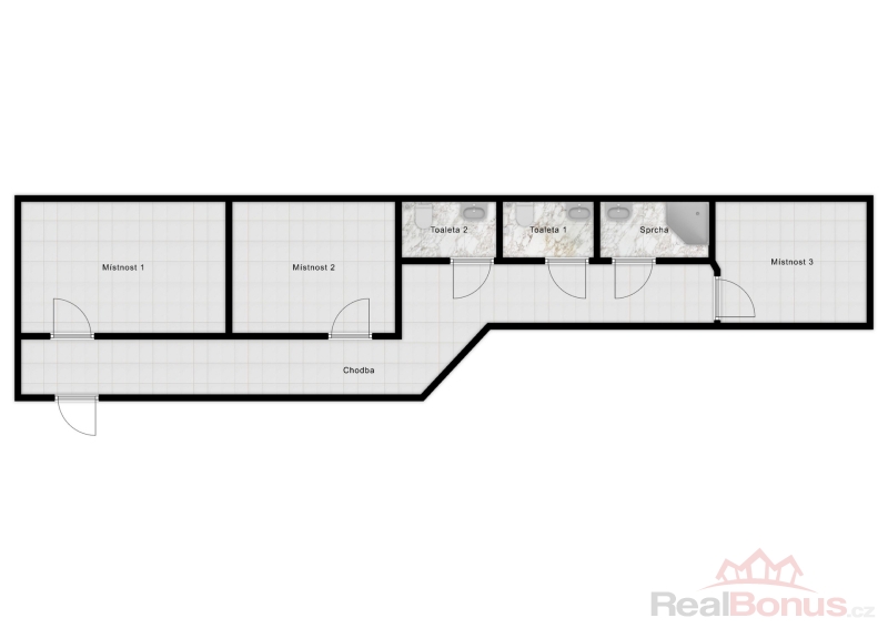
Pronájem komerčních prostor po rekonstrukci v podzemí o velikosti 70 m2 - 3 samostatné místnosti o velikosti 10 m2, 12 m2 a 13 m2, 2 samostatné toalety + samostatná sprcha.
Jedná se o podzemní prostory s přístupem přes dům z ulice.
Luxusní lokalita ve vedlejší ulici od Pařížské ul.
Prostory jsou nově zrekonstruovány s novou vzduchotechnikou.
Nové rozvody elektřiny a vody.
Prostory jsou vhodné na kanceláře, pedikůru a jiné služby.
Nájemné 27 000 Kč/měsíc na prvních 6 měsíců, následně 32 000 Kč/měsíc + náklady na elektřinu.
Kauce 2x nájemné
Uvedené ceny jsou bez DPH.
Odměna RK 27 000 Kč vč. DPH
Těším se na osobní setkání při osobní prohlídce.
| Cena: |
(za měsíc) 27 000,- Kč
(Odměna RK 27 000 Kč, kauce 2x nájemné)
|
|---|
| Číslo podlaží v domě | 1 |
|---|---|
| Počet podlaží objektu | 3 |
| Druh objektu | cihlová |
| Stav objektu | před rekonstrukcí |
| Energetická třída | G - Mimořádně nehospodárná |
| Vlastnictví | osobní |
| Počet podlaží pod zemí | 1 |
| Umístění objektu | centrum |
| Vybaveno | Nezařízeno |
| Rok rekonstrukce | 2 025 |
| Sociální zařízení | ano |
| Sociální zařízení - popis | 2x toaleta |
| Užitná plocha | 68 m² |
| Plocha kanceláří | 70 m² |
| Komunikace | asfaltová |
| Druh prostor | Jiné |
| K dispozici od | 01.01.2026 |
