| Číslo zakázky: | 2896 | ![]() Karta nemovitosti |
|---|---|---|
| Typ zakázky: | prodej |
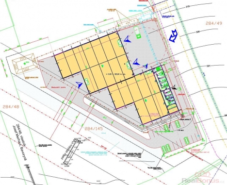
Nabízíme prodej průmyslového pozemku s vydaným ÚR na halu 2031 m2 zast. plochy. Bavoryně - Exit D5.
--------------------------------------------
Velikost pozemku celkem 9.892 m2
- Velikost zastavěné plochy haly 2.031 m2
- Velikost zpevněných ploch a manipulace 2.065 m2
- ostatní (zeleň, ploty a pod ) 5.796 m2
Cena za celek 1990 Kč/m2
------------------------------------------
Rovinný pozemek se nachází v Průmyslové nově vzniklé zóně Bavoryně, v blízkosti Editu dálnice D5. Pozemek je z části omezen VN a ochranným pásmem. Byla vypracována a schválena studie zastavitelnosti a to stavbou cca 2000 m2, a zpevněnými plochami cca 2000 m2. Komunikace pro příjezd buduje obec Bavoryně. Přípojky projednány a odsouhlaseny, Lze zaslat plné znění UR, jež popisuje napojení areálu a jejich specifikace. Průmyslová hala vhodná pro sklad či výrobu. Administrativní zázemí - viz foto.
Prodej - rezervace - možno ihned.
ČERNÝ Pavel
---------------- 2025 -----------------------
ARCHA - průmyslová kancelář ( Praha, Beroun )
-Prodej a pronájem skladů/dílen/kanceláří
-Prodej pozemků pro průmysl
-Výstavba skladů/dílen/areálů pro logistiku
| Cena: |
(za m2) 1 990,- Kč
(studie UR na povolení Stavby.)
|
|---|
| Číslo podlaží v domě | 1 |
|---|---|
| Vlastní pozemek | 9 892 m² |
| Elektřina | 230 V |
| Plyn | Zaveden |
| Plocha parcely | 9 892 m² |
| Druh pozemku | pro komerční výstavbu |
| Inženýrské sítě | Vodovod Kanalizace Plyn Elektřina |




