| Číslo zakázky: | 650877 | ![]() Karta nemovitosti |
|---|---|---|
| Typ zakázky: | prodej |
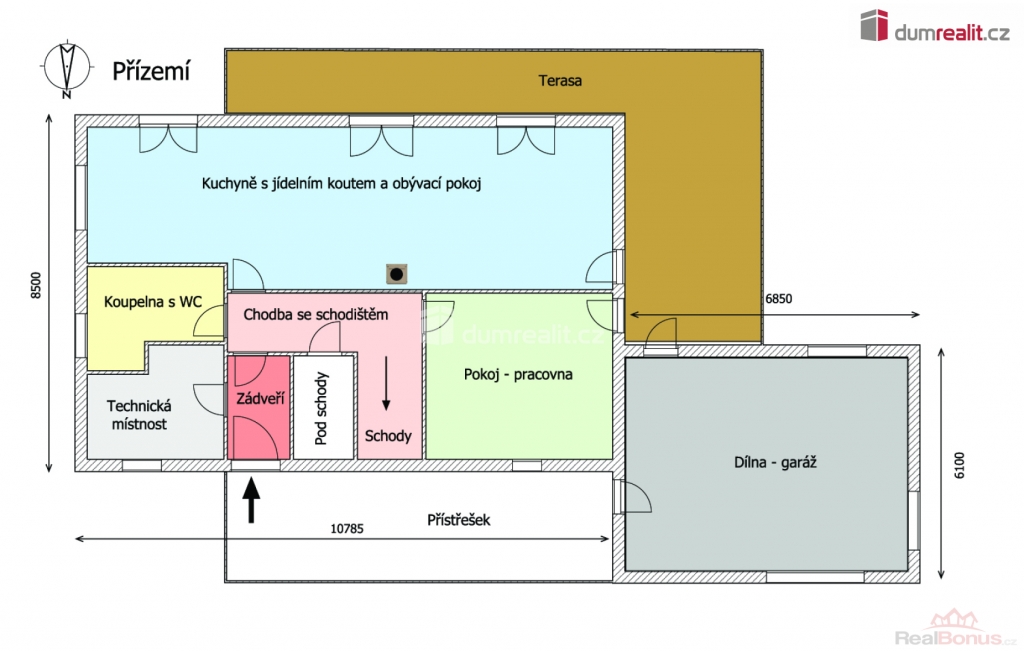
CENA K JEDNÁNÍ je kompletní včetně právního servisu, provize RK a úschovy kupní ceny., Dumrealit.cz Vám zprostředkuje prodej dvoupodlažního rodinného domu (dřevostavby) v podkrušnohorském městě Ostrov, místní části Vykmanov, 15 km od Karlových Varů. Dům o velikosti 5+kk (zast. plocha cca 134 m, podlahová plocha domu cca 156 m, podlahová plocha dílny cca 42 m) je postaven na rovinatém pozemku o výměře 1.746 m a jeho orientace umožňuje sluneční svit od východu po západ. Hlavní stavba je spojena s dílnou, která má samostatné vstupy a vjezd a lze ji využít také jako garáž. V přízemí je vstup do domu se zádveřím, chodbou a schodištěm do patra, technická místnost, koupelna s WC, pokoj, kuchyňský kout s jídelnou a obývací pokoj s krbovými kamny. Z obývacího pokoje lze vyjít přímo na venkovní dřevěnou terasu, která je v západní části zastřešena. Hlavní vstup do domu je chráněn zastřešenou přístavbou. V 1. NP je chodba, samostatná koupelna, samostatné WC, komora a tři pokoje, z nichž dva jsou oddělené dřevěnými posuvnými dveřmi, takže se dají propojit v jeden velký. Veškerá okna v celém objektu jsou plastová s trojskly, v horním patře mají některá okna venkovní mechanické žaluzie. Součástí vybavení domu je technologické zázemí (tepelné čerpadlo, bojler) a kuchyňská linka se spotřebiči (indukční deska, el. trouba, vestavěná mikrovlnná trouba, myčka, digestoř). Vytápění domu a ohřev teplé vody je zajištěn tepelným čerpadlem, podlahové topení je v celém přízemí (včetně dílny) a všech koupelnách a WC. V obytných pokojích jsou radiátory. Druhým zdrojem tepla jsou krbová kamna v obývacím pokoji. Dodávka studené vody je z veřejného vodovodního řádu, kanalizace je napojena do domovní čistírny odpadních vod (DČOV). V současné době probíhají přípravy k realizaci napojení do obecního veřejného kanalizačního řádu a rekonstrukce příjezdové komunikace. Na zahradě je vlastní studna pro zalévání zahrady. Parkování je možné na pozemku nebo před vjezdem k domu. Stavba je nízkoenergetická a dle platné legislativy je zařazena do energetické třídy B. Tuto nemovitost lze hradit hypotečním úvěrem, který Vám rádi pomůžeme vyřídit. Ev. číslo: 650263. Energetický štítek: B (58 kWh/m2/rok).
| Cena: |
(za nemovitost) 7 650 000,- Kč
(CENA K JEDNÁNÍ je kompletní včetně právního servisu, provize RK a úschovy kupní ceny.)
|
|---|
| Počet podlaží objektu | 2 |
|---|---|
| Celková podlahová plocha | 156 m² |
| Druh objektu | dřevěná |
| Stav objektu | velmi dobrý |
| Energetická třída | B - Velmi úsporná |
| Vlastní pozemek | 1 746 m² |
| Umístění objektu | klidná část obce |
| Počet míst k parkování | 5 |
| Zastavěná plocha | 134 m² |
| Užitná plocha | 156 m² |
| Poloha objektu | samostatný |




