| Číslo zakázky: | 475 | ![]() Karta nemovitosti |
|---|---|---|
| Typ zakázky: | prodej |
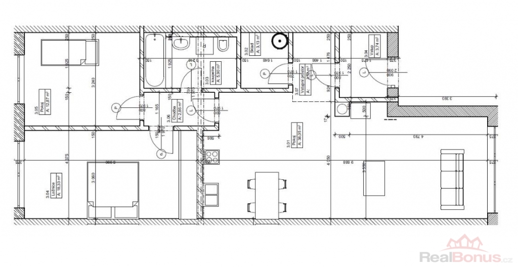
Prodám 3+kk v řadovém bytovém domě, jedná se o novostavbu s vlastním parkovacím stáním, energeticky úsporná novostavba. V obývacím pokoji je nerezový komín, příprava pro krb nebo krbová kamna. Topení je podlahové s elektrokotelem.
| Cena: | (za nemovitost) 4 250 000,- Kč |
|---|
| Dispozice bytu | 3+kk |
|---|---|
| Číslo podlaží v domě | 1 |
| Počet podlaží objektu | 1 |
| Celková podlahová plocha | 90 m² |
| Druh objektu | cihlová |
| Stav objektu | novostavba |
| Energetická třída | C - Úsporná |
| Vlastnictví | osobní |
| Druh bytu | v nájemním domě (činžovním) |
| Umístění objektu | klidná část obce |
| Ostatní rozvody | Kabelová televize Kabelové rozvody |
| Vybaveno | Částečně zařízeno |
| Topení | Ústřední - elektrické |
| Elektřina | 230 V |
| Užitná plocha | 90 m² |
| Inženýrské sítě | Vodovod Kanalizace Elektřina |
| Druh stavby | budova/y, hala/y |
| Poloha objektu | řadový |
