| Číslo zakázky: | 00559 | ![]() Karta nemovitosti |
|---|---|---|
| Typ zakázky: | prodej |
Hledáte rodinný dům s dostatkem soukromí a prostoru okolo? Pak jste tu správně. Můžete si koupit rodinný dům, který vhodný i jako chalupa, v malebné obci Příštpo, která je obklopena lesy, loukami a krásnou přírodou. To vše jen necelých 5km od města Jaroměřice nad Rokytnou, kde najdete kompletní občanskou vybavenost.
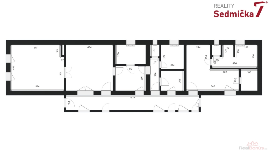
Dům s dílnou, stodolami a dalšími hospodářskými stavbami tvoří uzavřený areál, kde můžete mít naprosté soukromí - pozemek 1 138 m2. Hned za vstupními dveřmi vás čeká nově postavená zděná zateplená veranda s plastovými okny i dveřmi. Z ní se dostaneme buď rovnou do obývacího pokoje s kachlovými kamny, do chodby, odkud můžeme pokračovat do kuchyně, do koupelny, na WC, nebo do dalšího malého obytného prostoru. Poslední vchod z verandy vede do kotelny, kde najdeme kotel na TP, elektrický bojler a rozestavěnou druhou koupelnu.
Dům samotný má mohutné obvodové zdi, vyměněnou střešní krytinu a další úpravy. Některé dokončené, některé započaté. Kromě nově dostavěné verandy dům spodními izolacemi nedisponuje. Stavba je z části podsklepena.
Všechny stavby spolu s ploty tvoří uzavřený areál s velkým potenciálem. Celý areál je nutno vidět, jedině tak si uděláte představu, co vše je tam možné.
IS: Elektřina, Voda (obecní i studna), kanalizace.
Financování domu je možné i úvěrem ze stavebního spoření nebo hypotékou - zajistíme. Nezávazná bezplatná konzultace a výběr banky s naším finančním specialistou. Můžeme zajistit i financování pro klienty, kteří nedostanou úvěr v bance. Objednejte se na prohlídku včas!
| Cena: |
(za nemovitost) 2 975 000,- Kč
(včetně provize a právního servisu, včetně poplatků, včetně provize, včetně právního servisu, cena k jednání)
|
|---|
| Počet podlaží objektu | 1 |
|---|---|
| Druh objektu | smíšená |
| Stav objektu | dobrý |
| Energetická třída | G - Mimořádně nehospodárná |
| Vybavení | sklep |
| Umístění objektu | centrum |
| Topení | Lokální - tuhá paliva Ústřední - tuhá paliva |
| Doprava | silnice autobus |
| Voda | dálkový vodovod |
| Odpad | Městská kanalizace |
| Zastavěná plocha | 140 m² |
| Plocha parcely | 1 138 m² |
| Užitná plocha | 140 m² |
| Komunikace | asfaltová |
| Inženýrské sítě | Vodovod Kanalizace |
| Charakter okolní zástavby | venkovská |
| Poloha objektu | samostatný |
