| Číslo zakázky: | 972660 | ![]() Karta nemovitosti |
|---|---|---|
| Typ zakázky: | prodej |
Prodej stavebního pozemku s projektem penzionu Chalet Emma Rokytnice nad Jizerou.
Nabízíme stavební pozemek s kompletním projektem rodinného penzionu Chalet Emma v atraktivní horské lokalitě Rokytnice nad Jizerou. Projekt je připraven ve stavu před vydáním stavebního povolení, což umožňuje rychlý start investice. V Rokytnici se plánují velké investice a vy můžete mít již nyní projekt, který je připraven k realizaci.
Základní informace o projektu:
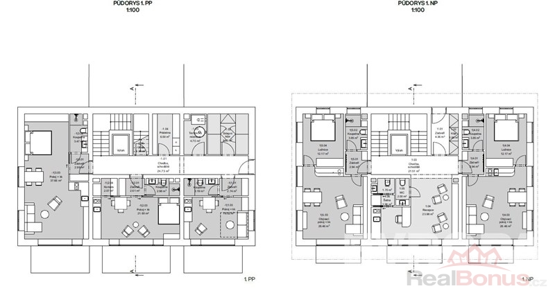
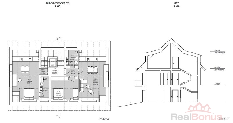
Rodinný penzion se 7 ubytovacími jednotkami a recepcí
Podsklepená jednopodlažní budova s obytným podkrovím
Jednotky mají vlastní sociální zařízení a kuchyňku, některé přímo s přístupem na terasu nebo balkon
Recepce, společenská místnost a úschovna sportovního vybavení
Hlavní vstup z ulice, druhý vstup z podzemního podlaží na terasu
Charakteristika lokality:
Pozemek se nachází v oblasti s rozvolněnou zástavbou v okolí jsou rodinné domy, penziony a bytové domy. Nenachází se v záplavovém ani poddolovaném území. Přístup je z místní komunikace. Pozemek je součástí zastavitelného území města.
Stav připravenosti projektu:
Projekt je ve stavu před vydáním stavebního povolení
Připravená plánovací smlouva
Demoliční výměr stávající stavby s nabytím právní moci
Zajištěna stanoviska dotčených orgánů
Kompletní projektová dokumentace je k dispozici
Tento projekt představuje unikátní příležitost pro investory:
Stavební pozemek s připraveným projektem penzionu, včetně všech potřebných dokumentů, je ideální pro rychlou realizaci výstavby ubytovacího zařízení v prestižní horské lokalitě s celoroční turistickou atraktivitou.
| Cena: |
(za nemovitost) 10 580 000,- Kč
(+ provize RK)
|
|---|
| Počet podlaží objektu | 3 |
|---|---|
| Druh objektu | cihlová |
| Stav objektu | projekt |
| Energetická třída | G - Mimořádně nehospodárná |
| Vlastnictví | osobní |
| Počet podlaží pod zemí | 1 |
| Vlastní pozemek | 1 782 m² |
| Vybaveno | Nezařízeno |
| Odpad | Městská kanalizace |
| Plyn | Zaveden |
| Počet míst k parkování | 9 |
| Užitná plocha | 421 m² |
| Typ zařízení | Hotel |
