| Číslo zakázky: | 233100 | ![]() Karta nemovitosti |
|---|---|---|
| Typ zakázky: | prodej |
upozornění:
REZERVOVÁNO!
Tato nabídka je rezervována konkrétním zájemcem a v rezervační lhůtě není k dispozici!
Hledáte novostavbu, která bude během několika měsíců dokončena na klíč a přesně podle Vašich představ?
V malebné části Horákov, v obci Mokrá-Horákov, Vám nabízím moderní rodinný dům s dispozicí až 6+kk, zahradou a garáží - ideální místo pro pohodové rodinné bydlení jen pár minut od Brna.
Dům má užitnou plochu přibližně 140 m2, podlahová plocha činí asi 150 m2 a pozemek má celkovou výměru 248 m2. Součástí je také garáž o velikosti přibližně 12 m. Nemovitost se v současné době nachází ve fázi hrubé stavby, přičemž zkušená stavební firma je připravena dům dokončit na klíč zhruba do půl roku. Kompletní rozpočet dokončení je k dispozici na vyžádání.
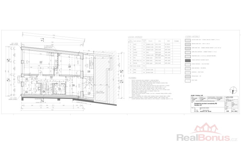
1. NP
Zádveří - 3.72 m2; Šatna - 6.12 m2, Chodba - 9.01 m2, Schodiště - 3.28 m2, Koupelna - 4.29 m2, Pokoj - 10.12 m2, Obývací pokoj s KK - 25.37 m2, Pracovna - 10.12 m2
Užitná plocha celkem: 72.02 m2
Terasa - 5.61 m2, Terasa - 6.66 m2
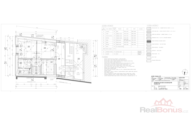
2. NP
Schodiště - 0.55 m2, Chodba - 3.94 m2, Technická místnost - 3.19 m2, Koupelna - 6.21 m2, Ložnice - 18.70 m2, Ložnice - 15.92 m2, Pracovna - 10.07 m2, Terasa - 14.20 m2
Užitná plocha celkem: 72.77 m2
Vyrovnávací podesta - 17.46 m2, Schodiště - 17.46 m2
Velkou výhodou je možnost přizpůsobit si finální podobu domu podle vlastních přání - ať už jde o interiér, materiály nebo doplňkové úpravy. V případě potřeby lze nemovitost upravit i na dvě samostatné bytové jednotky, což umožňuje vícegenerační bydlení, pronájem nebo propojení bydlení s podnikáním.
Parkování je možné na veřejném prostranství přímo před domem. Na pozemku se navíc nachází menší garáž, která je vhodná k rekonstrukci.
Lokalita, která má své kouzlo
Mokrá-Horákov leží v těsné blízkosti Brna a je obklopena krásnou přírodou Moravského krasu. V okolí se nachází množství turistických i cyklistických tras, včetně známé jeskyně Pekárna. Obec nabízí kompletní občanskou vybavenost a bohaté možnosti kulturního i sportovního vyžití, díky čemuž je ideální nejen pro rodinný život, ale i pro aktivní způsob trávení volného času.
Fotogalerie obsahuje nejprve vizualizace budoucího stavu, následně pak aktuální stav nemovitosti.
Zaujala Vás tato nemovitost? Zavolejte mi pro více informací nebo domluvení prohlídky.
| Cena: | na vyžádání v RK |
|---|
| Celková podlahová plocha | 150 m² |
|---|---|
| Druh objektu | cihlová |
| Stav objektu | ve výstavbě (hrubá stavba) |
| Energetická třída | G - Mimořádně nehospodárná |
| Vlastnictví | osobní |
| Vlastní pozemek | 248 m² |
| Vybavení | balkon lodžie terasa zahrada podkroví |
| Telekomunikace | Internet |
| Ostatní rozvody | Satelit Kabelové rozvody Ostatní rozvody |
| Topení | Ústřední - plynové |
| Doprava | vlak dálnice silnice MHD autobus |
| Elektřina | 230 V 380 V |
| Voda | dálkový vodovod |
| Odpad | Městská kanalizace |
| Plyn | Zaveden |
| Občanská vybavenost | Škola Školka Zdravotnická zařízení Pošta Supermarket Kompletní síť obchodů a služeb Restaurace Místní úřad Kulturní zařízení Koupaliště |
| Parkování | garáž |
| Zastavěná plocha | 131 m² |
| Plocha parcely | 248 m² |
| Ostatní | Plot Garáž |
| Užitná plocha | 140 m² |
| Plocha zahrady | 117 m² |
| Poloha objektu | řadový |
| K dispozici od | 01.04.2026 |




