| Číslo zakázky: | 0921 | ![]() Karta nemovitosti |
|---|---|---|
| Typ zakázky: | prodej |
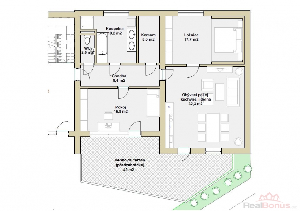
Prodej nově vybudovaného moderního bytu s dispozicí 3+kk, podlahovou plochou 100 m2, venkovní terasou (předzahrádkou) 45 m2, a venkovním parkovacím stáním, na unikátním místě na konci slepé ulice v sousedství lesa. Byt se nachází v přízemí energeticky úsporného domu se šesti bytovými jednotkami v ulici 5. máje, Praha 5 - Stodůlky (rozhraní Motol/Stodůlky), s dobrou dostupností.
Jednotka se sestává z nadstandardně prostorného obývacího pokoje o rozloze 32 m2 s jihozápadní orientací se vstupem na venkovní terasu, která je možná upravit na předzahrádku, a dvou dalších velkých pokojů o rozlohách 17 a 18 m2 (jeden také se vstupem na venkovní terasu). Byt dále disponuje velkou koupelnou s oknem o výměře 10 m2 v moderní kombinaci obkladů mramoru a dřeva, kde najdete vanu, sprchový kout, dvě designová umyvadla a WC, další WC je samostatné. Přímo v bytě je velká komora 5 m2. Ve všech pokojích bytu a na chodbách jsou vinylové podlahy, v koupelně a na toaletě je dlažba. Celý byt je vytápěn podlahovým topením. Zakázkové interiérové bezfalcové dveře s prosklením podtrhují moderní vzhled bytu.
K bytu je možno přikoupit užívání venkovního parkovacího stání za částku 400.000 Kč.
Energeticky úsporný bytový dům s energetickou třídou C je po právě dokončené kompletní rekonstrukci, nová fasáda, zateplení, nová okna s izotermickým trojsklem, rozvody vody atd. Vytápění jednotlivých bytů zajišťuje nová plynová kotelna, měrná potřeba tepla na vytápění je pouze 39 kWh/m2/rok.
Tramvajová zastávka (tram č. 9, 10) je vzdálená 400m cca 5 min. pěšky (tramvají 15 min. Anděl), autobusová zastávka (bus č. 168 a 219) je vzdálená 500m cca 7 min. pěšky (autobusem metro B Hůrka 9 min., metro A Motol 7 min.).
| Cena: | (za nemovitost) 13 380 000,- Kč |
|---|
| Dispozice bytu | 3+kk |
|---|---|
| Číslo podlaží v domě | 1 |
| Počet podlaží objektu | 3 |
| Druh objektu | cihlová |
| Stav objektu | novostavba |
| Energetická třída | C - Úsporná |
| Vlastnictví | osobní |
| Druh bytu | v nájemním domě (činžovním) |
| Vybavení | terasa |
| Umístění objektu | klidná část obce |
| Vybaveno | Částečně zařízeno |
| Topení | Ústřední - plynové |
| Plocha zahrady | 45 m² |
| Druh stavby | budova/y, hala/y |
| Poloha objektu | samostatný |




