| Číslo zakázky: | 0947 | ![]() Karta nemovitosti |
|---|---|---|
| Typ zakázky: | pronájem |
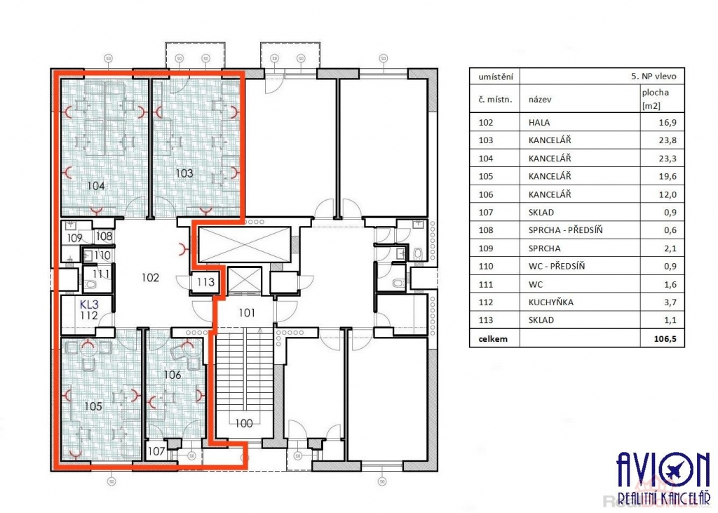
Nově zrekonstruované kancelářské prostory v 5. patře administrativní budovy v Praze 5 - Smíchově, přímo u metra Anděl, ul. Bozděchova. Celková plocha 107 m2 se skládá ze čtyř hlavních místností, tři velké kanceláře od 20 do 24 m2 a jedné menší o rozloze 12 m2, ze dvou kanceláří je vstup na balkony. Všechny kanceláře jsou neprůchozí a vstupuje se do nich z centrální haly. V prostorách se dále nachází vybavená kuchyňka, sprcha, toaleta a malý sklad. Celé prostory jsou pod společným uzamčením s přístupem na magnetickou kartu a jsou klimatizované.
Možné využití nejlépe pro kancelářský provoz. Kanceláře jsou úplně nově zrekonstruované, nové koberce, vymalování, nová kuchyňská linka atd. Možnost pronájmu se systémovým kancelářským vybavením na foto nebo jako prázdné.
Administrativní kancelářská budova s velmi pěknými vnitřními prostory disponuje recepcí a čtyřmi společnými jednacími místnostmi s možností rezervace, jejichž využívání je již zahrnuto v ceně nájmu. Objekt má 24/7 ostrahu.
Vynikající dopravní dostupnost přímo na dopravním uzlu na Andělu.
K dispozici ihned.
Energetickou třídu G uvádíme z formálních důvodů, po obdržení průkazu energetické náročnosti budovy bude uvedena skutečná hodnota.
| Cena: | (za m2 / měsíc) 349,- Kč |
|---|
| Číslo podlaží v domě | 5 |
|---|---|
| Počet podlaží objektu | 6 |
| Druh objektu | cihlová |
| Stav objektu | po rekonstrukci |
| Počet podlaží pod zemí | 1 |
| Vybavení | balkon výtah |
| Umístění objektu | centrum |
| Vybaveno | Částečně zařízeno |
| Topení | Ústřední - dálkové |
| Účel budovy | Administrativní b. |
| Plocha kanceláří | 107 m² |
| Druh stavby | budova/y, hala/y |
| Poloha objektu | v bloku |
| Druh prostor | Kanceláře |
