| Číslo zakázky: | 00150 | ![]() Karta nemovitosti |
|---|---|---|
| Typ zakázky: | prodej |
Zprostředkujeme Vám, ve výhradním zastoupení majitele, prodej novostavby rodinného domu se dvěma byty o velikosti 3+kk, terasou a společnou zahradou. Dům je postavený v ulici Kapusty č.p. 886, v městské části Charvátská Nová Ves, v okresním městě Břeclav.
Celková plocha domu 234 m2 s bytnou plochou 214 m2. Kolaudace v 08/2021.
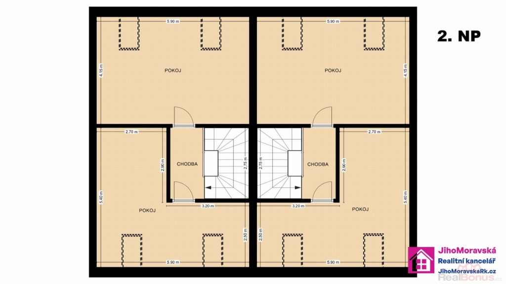
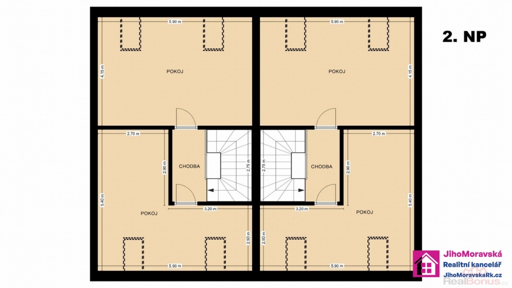
Dispozice domu:1.nadzemní podlaží: předsíň, koupelna (sprchový kout), toaleta, pokoj s kuch. koutem, schodiště a terasa. (oba byty)2.nadzemní podlaží: schodiště, chodba a dva pokoje (oba byty). Půdorysy obou podlaží naleznete ve fotogalerii.
Pro lepší orientaci v domě doporučuje si projít 3D virtuální prohlídku včetně zahrady.
Bytové jednotky jsou identické, jen zrcadlově otočené. Každá bytová jednotka má samostatný vchod. Za společnou terasou se nacházejí dvě parkovací stání na vlastním pozemku. Celkem můžete zaparkovat 4 osobní automobily (dva před domem a dva za domem).
Aktuální měsíční náklady na provoz domu jsou ve výši 5.500 Kč (elektřina, voda a stočné).
V případě více zájemců o koupi domu si majitel nemovitosti vyhrazuje právo pro výběr kupujícího, dle jeho požadavků a souhlasí s tím, že Realitní makléř může použít pro výběr kupujícího aukci.
Zaujala Vás tato nabídka? Máte zájem o prohlídku? Vám vyhovující termín prohlídky (datum a čas) s kontakty na Vás (e-mail + tel. číslo) zasílejte formou odpovědi na tuto inzerci. Realitní makléř Vás následně bude telefonicky kontaktovat.
| Cena: |
(za nemovitost) 13 475 000,- Kč
(včetně poplatků, včetně provize, včetně právního servisu)
|
|---|
| Počet podlaží objektu | 2 |
|---|---|
| Celková podlahová plocha | 234 m² |
| Druh objektu | cihlová |
| Stav objektu | novostavba |
| Energetická třída | B - Velmi úsporná |
| Vlastní pozemek | 305 m² |
| Plocha teras | 20 m² |
| Umístění objektu | klidná část obce |
| Doprava | vlak |
| Odpad | Městská kanalizace |
| Plyn | Zaveden |
| Rok kolaudace | 2 021 |
| Počet míst k parkování | 3 |
| Zastavěná plocha | 131 m² |
| Užitná plocha | 214 m² |
| Komunikace | asfaltová |
| Poloha objektu | řadový |
