| Číslo zakázky: | 00129 | ![]() Karta nemovitosti |
|---|---|---|
| Typ zakázky: | prodej |
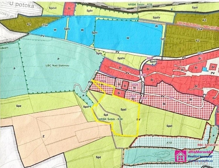
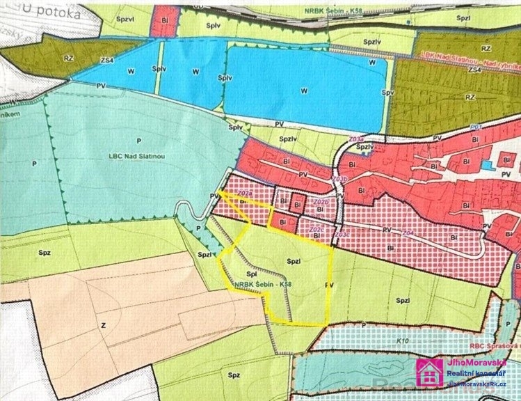
Zprostředkujeme Vám, ve výhradním zastoupení majitelky, podíl 1/2 na pozemcích s celkovou plochou 39.246 m2 v obci Zeměchy, katastrální území Zeměchy u Kralup nad Vltavou.
Jedná se o pozemky s parcelními čísly: 172/1 výměra 36.601 m2. druh pozemku orná půda 172/2 výměra 924 m2. druh pozemku ostatní plocha 172/3 výměra 1519 m2. druh pozemku orná půda172/7 výměra 63 m2. druh pozemku ostatní plocha172/10 výměra 119 m2. druh pozemku ostatní plocha172/15 výměra 20 m2. druh pozemku orná půdaVše zapsáno na LV č. 287, katastrální úúzemí Zeměchy u Kralup nad Vltavou.
Zaujala Vás tato nabídka? Máte zájem o prohlídku? Vám vyhovující termín prohlídky (den a čas) s kontakty na Vás (tel. číslo a e-mail) zasílejte na e-mail realitního makléře, formou odpovědi na tuto inzerci. Realitní makléř Vás následně bude telefonicky kontaktovat.
| Cena: |
(za nemovitost) 4 195 000,- Kč
(včetně poplatků, včetně provize, včetně právního servisu, cena k jednání)
|
|---|
| Stav objektu | velmi dobrý |
|---|---|
| Vlastní pozemek | 39 246 m² |
| Umístění objektu | centrum |
| Druh pozemku | zemědělská |




