| Číslo zakázky: | D/RSB/170/22-5 | ![]() Karta nemovitosti |
|---|---|---|
| Typ zakázky: | prodej |
Ve výhradním zastoupení investore nabízíme k prodeji prostorný apartmán 1+kk v nově budovaném polyfunkčním objektu, který tvoří novou dominantu na nároží významných ulic. Roháček Humpolec poskytuje ideální podmínky pro komfortní užívání s důrazem na energetickou úspornost a minimalizaci provozních nákladů.
Projekt Roháček nabízí velkou flexibilitu v úpravách a přizpůsobeních dle specifických přání klientů. Možnost spojení jednotek umožňuje vytvoření prostornějších apartmánů či komerčních jednotek, které lze využít třeba jako apartmány, studia, kanceláře, ordinace či specializované vzorkovny. Možnost přikoupení parkovacího stání a sklepní kóje na patře.
Strategická poloha v rozvíjejícím se Humpolci, nedaleko průmyslových center jako je CTP Park Humpolec a Agrostroj Pelhřimov, činí z projektu Roháček atraktivní investiční možnost s vysokým potenciálem pro nadprůměrné zhodnocení.
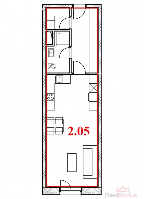
Dispozice: vstupní chodba (7,9 m2), pokoj s kuchyňským koutem (26,č m2), koupelna s WC (3,5 m2), komora (2,2 m2)
| Cena: | (za nemovitost) 3 324 750,- Kč |
|---|
| Dispozice bytu | 1+kk |
|---|---|
| Číslo podlaží v domě | 2 |
| Počet podlaží objektu | 4 |
| Celková podlahová plocha | 40 m² |
| Druh objektu | skeletová |
| Stav objektu | ve výstavbě (hrubá stavba) |
| Energetická třída | B - Velmi úsporná |
| Vlastnictví | osobní |
| Topení | Ústřední - elektrické Jiné |
| Voda | dálkový vodovod |
| Odpad | Městská kanalizace |
| Užitná plocha | 40 m² |
| Inženýrské sítě | Vodovod Kanalizace |




