| Číslo zakázky: | 26010801 | ![]() Karta nemovitosti |
|---|---|---|
| Typ zakázky: | prodej |
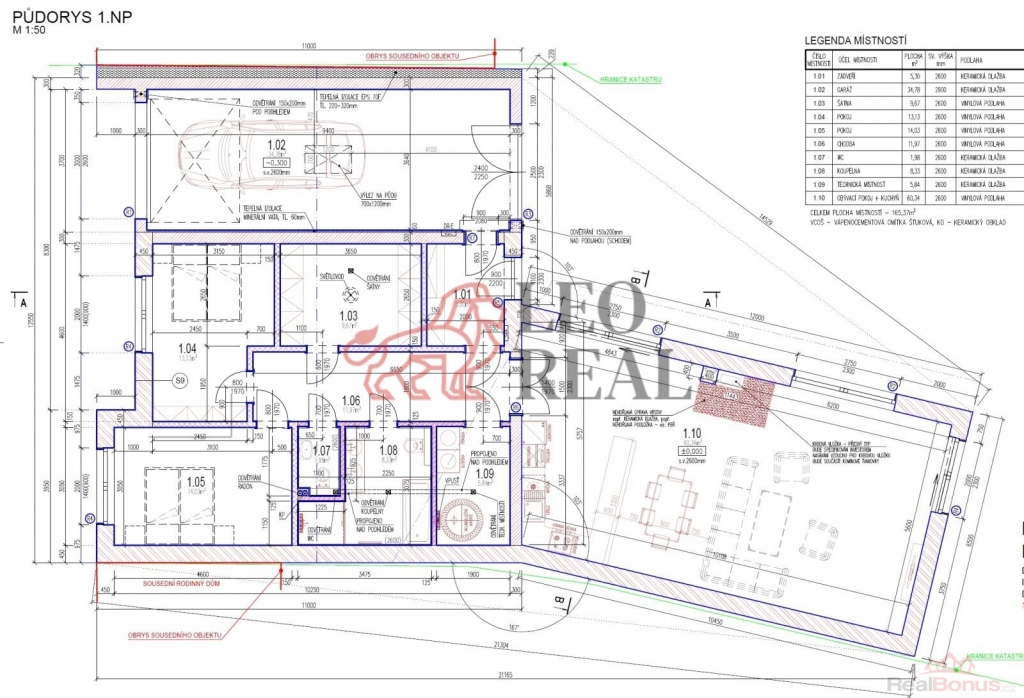
Nabízíme vám ke koupi krásný rovinatý pozemek v obci Tvrdonice. Stavební místo o celkové výměře 611m2 vzniklo demolicí starého řadového vesnického domu. K dispozici jsou veškeré sítě, buď přímo na pozemku nebo v bezprostřední blízkosti. V ceně pozemku je i projekt pro stavbu jednopodlažního rodinného domu ve tvaru písmene "L" se sedlovou střechou. V zadní části pozemku je nově vybudován přístřešek. Voda ze střechy je svedena do velké nádrže na užitkovou vodu.
Tvrdonice jsou obec v okrese Břeclav v Jihomoravském kraji. Žije zde přibližně 2 100 obyvatel. Tvrdonice jsou folklórním centrem Podluží, výrazné podoblasti národopisné oblasti Slovácko. Jde o vinařskou obec ve Slovácké vinařské podoblasti.
V obci se nachází veškerá infrastruktura, škola, školka, zdravotní středisko, knihovna, obchody i restaurace. Hned za obcí, přibližně 5 minut chůze od pozemku, začíná CHKO Soutok, která láká k procházkám i vyjížďkám na kole.
Obec má výborné dopravní spojení do blízkých okresních měst Břeclavi a Hodonína, 5 km od Tvrdonic je nájezd na dálnici D2. Brno je vzdáleno přibližně 30 minut jízdy. V blízkosti jsou též hraniční přechody na Slovensko a do Rakouska.
| Cena: | (za nemovitost) 2 599 000,- Kč |
|---|
| Stav objektu | velmi dobrý |
|---|---|
| Vlastní pozemek | 611 m² |
| Umístění objektu | klidná část obce |
| Druh pozemku | pro bydlení |
| Charakter okolní zástavby | venkovská |




