| Číslo zakázky: | 226132 | ![]() Karta nemovitosti |
|---|---|---|
| Typ zakázky: | prodej |
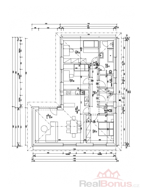
Prodej přízemního rodinného domu se začátkem výstavby 02/2026. Nyní si je možné prohlédnout první dům ve stavu dokončování.
Jedná se o totožné stavby v sousedství.
Rodinný dům se bude nacházet na pozemku 750 m2 v klidné části uprostřed obce Zaječice.
Výstavba nového domu začne 02/2026, první dům je již ve výstavbě. V prvním domě jsou již hotové příčky a dům je tak rozdělen na pokoje. Pozemek je z již srovnaný a připraveny plotové tyčky.
Aktuální fotografie ke 14.6.25
Dům bude postaven z porobetonu.
Střecha: vazníky a taška.
Hrubá stavba: Obvodové zdi, střecha, terénní úpravy, napojení na veřejnou kanalizaci a vodovod, přívod elektřiny do technické místnosti. Příprava na hospodaření s dešťovou vodou. Oplocená a srovnaná zahrada, příjezdová cesta.
Energetická náročnost domu: A
V inzerci jsou použity vizualizace + reálné fotky ze stavby prvního domu.
Výměry jsou orientační.
Rád se s Vámi osobně setkám a poskytnu více informací o domu.
| Cena: | (za nemovitost) 4 990 000,- Kč |
|---|
| Počet podlaží objektu | 1 |
|---|---|
| Druh objektu | cihlová |
| Stav objektu | ve výstavbě (hrubá stavba) |
| Energetická třída | A - Mimořádně úsporná |
| Vlastnictví | osobní |
| Vlastní pozemek | 750 m² |
| Plocha teras | 20 m² |
| Umístění objektu | klidná část obce |
| Vybaveno | Nezařízeno |
| Stáří objektu | 2 026 |
| Rok kolaudace | 2 026 |
| Parkování | venkovní stání |
| Zastavěná plocha | 120 m² |
| Plocha parcely | 750 m² |
| Délka | 14 m |
| Šířka | 11 m |
| Užitná plocha | 100 m² |
| Plocha zahrady | 750 m² |
| Komunikace | asfaltová |
| Poloha objektu | samostatný |
| Velikost bytů (3+1, 2+kk atd.) | 4+kk |
| K dispozici od | 30.11.2026 |




