| Číslo zakázky: | 32078 | ![]() Karta nemovitosti |
|---|---|---|
| Typ zakázky: | prodej |
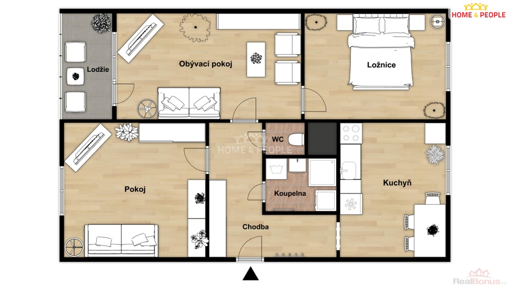
Cena je včetně právního servisu a provize RK, Zprostředkujeme Vám exkluzivně prodej slunného bytu 3+1 o ploše 72 m v osobním vlastnictví, který se nachází v 5. patře panelového bytového domu ve městě Jablonec nad Nisou, v části Mšeno, v těsné blízkosti jablonecké přehrady, na úpatí Jizerských hor. Byt disponuje vstupní chodbou, 3 pokoji, lodžií, kuchyní a sociálním zázemím. Součástí prostorné vstupní chodby je šatní stěna a skříně vyrobené na míru s dostatečným úložným prostorem. V kuchyni se nachází kuchyňská linka, plynový sporák s troubou, potravinová skříň a jídelní část s výhledem do přírody. Z velkého obývacího pokoje je vstup na prostornou, nově prosklenou lodžii s dostatkem místa pro posezení. Další součástí bytu jsou 2 pokoje. Jeden z nich (ložnice) má přímý, ničím nerušený výhled na vyhledávanou část Jablonce, kterou je přehradní nádrž. Zde se nabízí mnoho celoročních volnočasových aktivit. Sociální zázemí tvoří koupelna se sprchovým koutem, umyvadlem, přípojkou na pračku a sušičku a samostatné WC. Byt je po částečné modernizaci (nová plastová okna, koupelna se sprchovým koutem, keramické obklady a dlažba v koupelně i na WC, nové rozvody vody a odpadů v plastu). K bytu náleží sklepní kóje umístěná v suterénu. V bytovém domě je výtah. V roce 2025 dům prošel rozsáhlou revitalizací - vnější zateplení, nová venkovní omítka, plastová okna včetně společných prostor a vstupních dveří se zvonky a schránkami. U domu je možnost parkování. Bytový dům je umístěn ve vyhledávané lokalitě v těsné blízkosti jablonecké přehrady, zdravotního zařízení. ZŠ, MŠ, nákupní zóny. Dobré autobusové spojení do centra města, do Liberce a Jizerských hor (Bedřichov 10 km). Město Jablonec nad Nisou nabízí velké společenské, kulturní a sportovní vyžití s širokou občanskou vybaveností. Byt lze využít k vlastnímu bydlení s okamžitým nastěhováním nebo je zajímavou investicí. Doporučujeme prohlídku. Máme možnost Vám zajistit výhodné financování. Ev. číslo: 32078. Energetický štítek: C (89 kWh/m2/rok).
| Cena: |
(za nemovitost) 4 990 000,- Kč
(Cena je včetně právního servisu a provize RK)
|
|---|
| Dispozice bytu | 3+1 |
|---|---|
| Číslo podlaží v domě | 6 |
| Počet podlaží objektu | 11 |
| Celková podlahová plocha | 72 m² |
| Druh objektu | panelová |
| Stav objektu | velmi dobrý |
| Energetická třída | C - Úsporná |
| Vlastnictví | osobní |
| Vybaveno | Nezařízeno |
| Užitná plocha | 72 m² |




