| Číslo zakázky: | 25003 | ![]() Karta nemovitosti |
|---|---|---|
| Typ zakázky: | prodej |
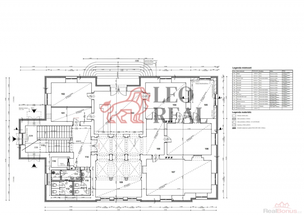
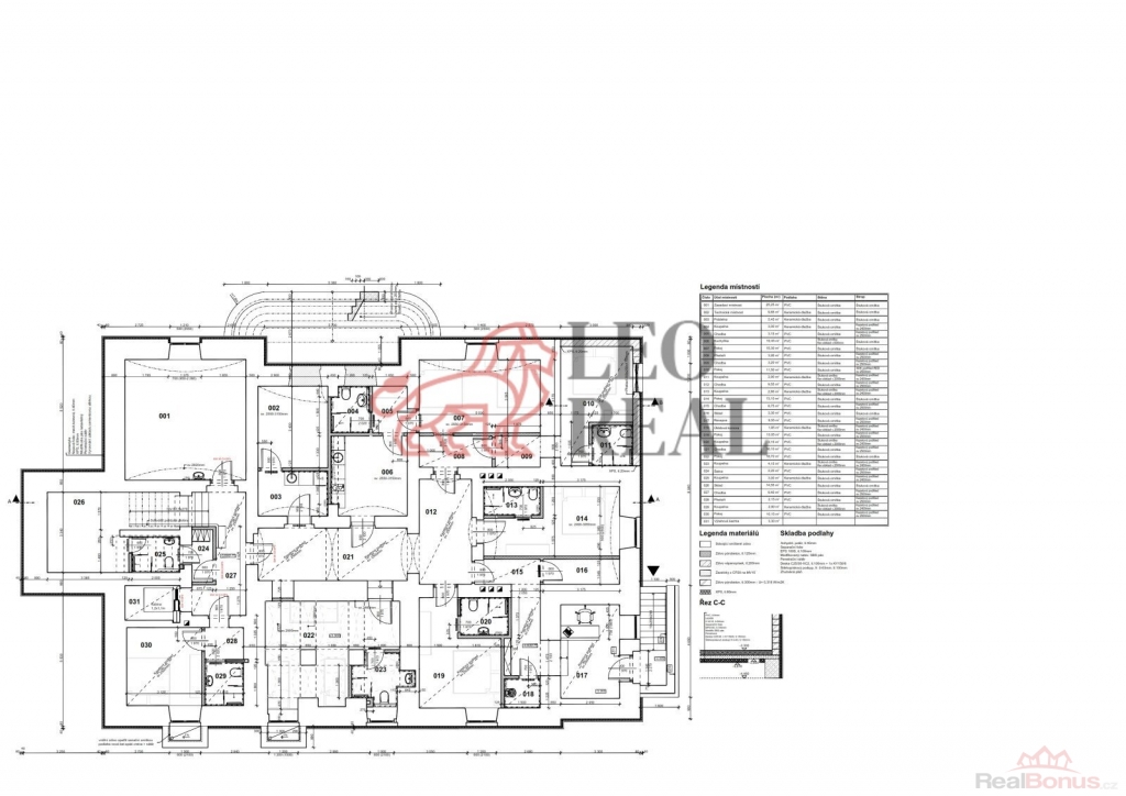
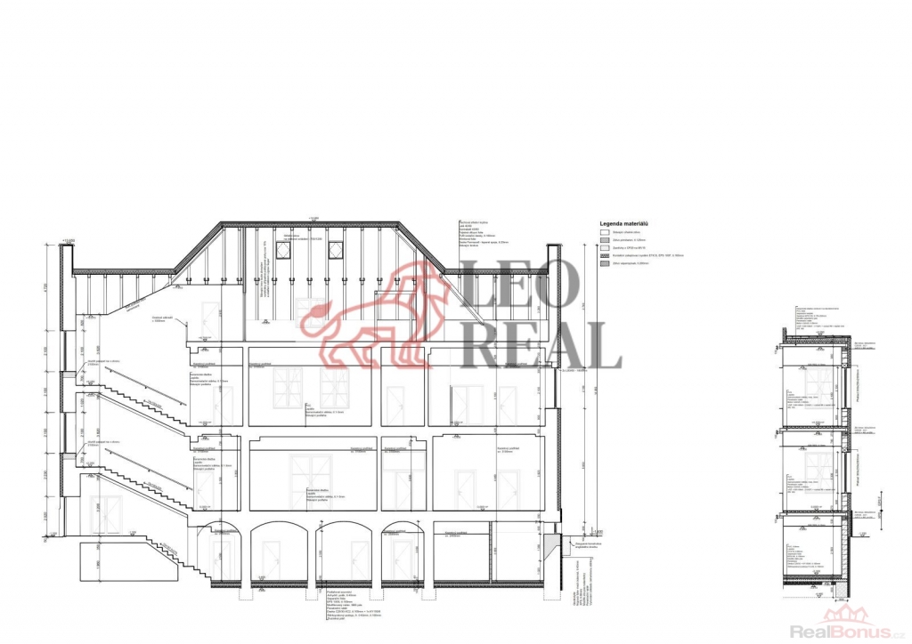
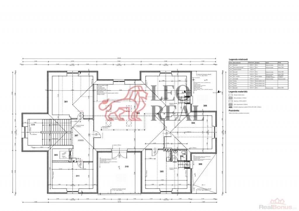
Nabízíme k prodeji historickou budovu bývalého zdravotního střediska. Tato jedinečná nemovitost má celkovou podlažní plochou cca 1000 m. Budova má tři nadzemní podlaží a jedno podzemní podlaží, přičemž jedno nadzemní podlaží je podkroví s potenciálem pro vestavbu.
Nemovitost jak stavebně, tak dle platného územního plánu, skýtá široké spektrum budoucího využití, a to od současného záměru kancelářských prostor, před bytový dům, až po možnost vybudování zdravotního střediska.
Územní plán umožňuje vybudovat:
- bytové i rodinné domy
- ubytovací zařízení
- administrativní a správní budovy místního i nadmístního významu
- peněžní ústavy
- maloobchodní zařízení do 800 m2 odbytových ploch
- veřejné stravování - kulturní zařízení a stavby, galerie, zábavní střediska
- zdravotnická zařízení a zařízení sociální péče
Nemovitost je kompletně stavebně vyčištěná, připravená k rekonstrukci a disponuje platným stavebním povolením.
Nemovitost je strategicky umístěna v širším centru města s dobrým napojením na MHD a stávající železniční stanici Ústí nad Labem Západ. Zároveň není zatížena památkovou ochranou, což umožňuje větší flexibilitu při rekonstrukci. Tento objekt představuje skvělou příležitost pro zájemce, kteří hledají prostor s historií a potenciálem pro moderní využití.
V prostoru stávající železniční stanice Ústí nad Labem Západ bude umístěna zastávka vysokorychlostní trati Praha Berlín. Tato skutečnost promění dotčené území v prémiovou lokalitu s dosahem do centra Prahy za 25 minut.
| Cena: | na vyžádání v RK |
|---|
| Počet podlaží objektu | 4 |
|---|---|
| Druh objektu | cihlová |
| Stav objektu | před rekonstrukcí |
| Energetická třída | G - Mimořádně nehospodárná |
| Umístění objektu | centrum |
| Topení | Lokální - plynové |
| Odpad | Městská kanalizace |
| Plyn | Zaveden |
| Stáří objektu | 1 920 |
| Užitná plocha | 1 000 m² |
| Plocha kanceláří | 1 000 m² |
| Druh prostor | Kanceláře |
