| Číslo zakázky: | 01202 | ![]() Karta nemovitosti |
|---|---|---|
| Typ zakázky: | prodej |
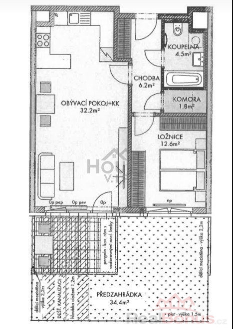
Nabízíme Vám postoupení družstevního bytu 2+KK o výměře 57,3 m2 s předzahrádkou 34,4 m2 ve 1. nadzemním podlaží cihlové novostavby moderní Rezidenci U Šárky, Stočesova ul., Praha 6 - Ruzyně.
K bytu náleží garážové stání a sklep nacházející se v suterénu domu.
Částka za postoupení je 5.400.000,- Kč. Zbývající anuita je ve výši 6.000.000,- Kč. Celková cena 11.400.000,- Kč.
Vzhledem k tomu, že se jedná o družstevní byt, cenu splácíte formou nájmu. Neprokazujete výši příjmu, nepotřebujete hypoteční úvěr a byt je možné převést do osobního vlastnictví kdykoli v průběhu splacení anuity. Anuitu můžete samozřejmě také kdykoli doplatit a byt si převést do osobního vlastnictví.
Vzhledem k aktuálnímu navýšení úrokových sazeb na hypotečním trhu, nabízí anuitní splácení nemovitosti výhodnější financování. (Sazba je 4,85% s fixací na 5 let).
Byt je v současné době lukrativně pronajat.
Byt je orientovaný na východ s výhledem do zeleně.
V docházkové vzdálenosti je mnoho možností k relaxaci a sportu - přírodní rezervace Divoká Šárka a Obora Hvězda. Výborné dopravní spojení do města, 3 min. na MHD, 12 min. metro "A", zast. Nádraží Veleslavín, na Letiště Václava Havla Praha jen 9 min.
Atraktivní bydlení doplňuje skvělá poloha domu, v přímé blízkosti se nachází veškerá občanská vybavenost včetně škol, školek, lékařů, obchodů a restaurací - jen 5 min, v blízké vzdálenosti je OC Šestka.
Doporučujeme.
| Cena: |
(za nemovitost) 11 400 000,- Kč
(včetně provize, včetně právního servisu)
|
|---|
| Dispozice bytu | 2+kk |
|---|---|
| Číslo podlaží v domě | 1 |
| Počet podlaží objektu | 5 |
| Celková podlahová plocha | 92 m² |
| Druh objektu | smíšená |
| Stav objektu | novostavba |
| Energetická třída | G - Mimořádně nehospodárná |
| Vlastnictví | osobní |
| Počet podlaží pod zemí | 1 |
| Vybavení | terasa sklep zahrada |
| Umístění objektu | centrum |
| Doprava | silnice MHD autobus |
| Voda | dálkový vodovod |
| Rok kolaudace | 2 025 |
| Parkování | garáž |
| Celková plocha | 92 m² |
| Ostatní | Garáž |
| Užitná plocha | 57 m² |
| Plocha zahrady | 34 m² |
| Inženýrské sítě | Vodovod |
| Charakter okolní zástavby | obytná |
| Poloha objektu | samostatný |
| Anuita | 6 000 000 Kč |




