| Číslo zakázky: | 25243 | ![]() Karta nemovitosti |
|---|---|---|
| Typ zakázky: | prodej |
Nabízím ke koupi nový rodinný dům v klidné části obce Chudolazy, situovaný v jedné z nejžádanějších lokalit chráněné krajinné oblasti Kokořínsko. Tato oblast je vyhlášená čistou přírodou, rozlehlými lesy, skalními útvary a množstvím turistických i cyklistických tras. Lokalita je ideální pro ty, kteří hledají klidné bydlení v bezprostředním kontaktu s přírodou, a přitom nechtějí ztratit dobrou dopravní dostupnost do města.
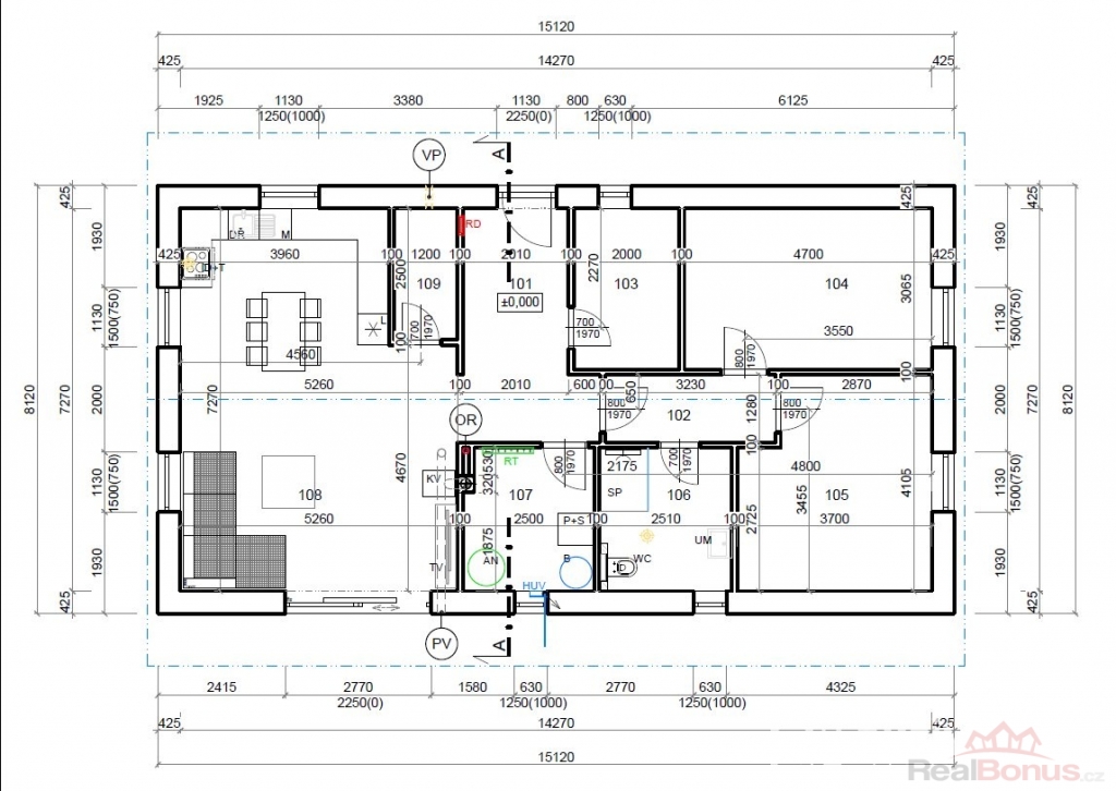
Dům je navržen s dispozicí 3+kk a celkovou užitnou plochou 102 m2. Obytná část se nachází v přízemí, podkroví je možné využít jako půdní prostor vhodný ke skladování. Dominantou interiéru je prostorný obývací pokoj s kuchyňským koutem a spíží o velikosti 38,45 m2, který poskytuje dostatek prostoru pro rodinný život i společná setkání. Dále jsou zde dva samostatné pokoje o velikosti 14,5 m2, šatna o ploše 6,2 m2, koupelna s toaletou 6,8 m2 a technická místnost o stejné velikosti. Vstupní chodba a zádveří zaujímají 14,2 m2.
Vytápění domu je řešeno podlahovým topením. Primárním zdrojem tepla je krb s výměníkem, který zajišťuje efektivní vytápění celého domu. Alternativně je možné dům vytápět a zároveň ohřívat teplou vodu pomocí elektrokotle. Dům je napojen na obecní vodovod, elektrickou přípojku a odpad je řešen vlastní čističkou odpadních vod.
Součástí pozemku je zahradní domek o velikosti 40 m2, jímka na dešťovou vodu, okrasné jezírko, udržovaná zahrada a kompletní oplocení. Vše je navrženo s důrazem na funkčnost, estetiku a přirozené začlenění do okolní krajiny.
Pozemek o velikosti 1181 m2 se nachází na okraji obce, obklopený lesy a minimální okolní zástavbou, což zajišťuje maximální soukromí a klid. Okolní příroda nabízí celoroční možnosti pro pěší turistiku, cyklovýlety, houbaření i relaxaci. Přesto je lokalita velmi dobře dostupná ? autem se dostanete přibližně za 20 minut do Mělníka a za cca 47 minut do Prahy na metro Letňany.
Nemovitost je aktuálně ve fázi hotové hrubé stavby s možností dokončení na klíč dle vašich představ. Kolaudace je plánována na léto 2026, což novému majiteli poskytuje dostatek času přizpůsobit si finální podobu domu podle vlastních potřeb.
Pokud Vás nabídka zaujala, neváhejte mě kontaktovat pro více informací či sjednání osobní prohlídky.
| Cena: |
(za nemovitost) 10 690 000,- Kč
(Cena včetně právních a realitních služeb a provize RK)
|
|---|
| Počet podlaží objektu | 2 |
|---|---|
| Druh objektu | cihlová |
| Stav objektu | ve výstavbě (hrubá stavba) |
| Energetická třída | B - Velmi úsporná |
| Umístění objektu | centrum |
| Topení | Lokální - tuhá paliva Ústřední - elektrické Jiné |
| Doprava | silnice |
| Voda | dálkový vodovod |
| Odpad | ČOV pro celý objekt |
| Stáří objektu | 1 |
| Rok kolaudace | 2 026 |
| Zastavěná plocha | 102 m² |
| Plocha parcely | 1 181 m² |
| Užitná plocha | 102 m² |
| Komunikace | asfaltová |
| Inženýrské sítě | Vodovod |
| Charakter okolní zástavby | obytná |
| Umístění v chráněných lokalitách | ochranné pásmo |
| Poloha objektu | samostatný |




