| Číslo zakázky: | 233285 | ![]() Karta nemovitosti |
|---|---|---|
| Typ zakázky: | pronájem |
Hledáte nové místo k podnikání? Tady je:
Nabízíme k pronájmu samostatnou administrativní budovu o 3 nadzemních podlažích v žádané lokalitě ulice Hodolanská. Objekt poskytuje 335 m2 užitné plochy kanceláří a nabízí variabilní uspořádání vhodné jako sídlo firmy, zázemí pro IT společnosti, e-shopy, administrativu či služby. Budova stojí na pozemku: 335 m2.
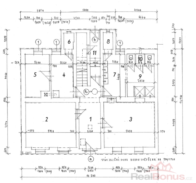
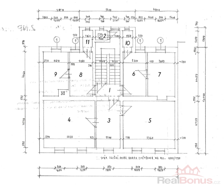
Dispozice a plochy (přiložené půdorysy jsou orientační):
Celkem 11 kanceláří (od cca 10 m²)
Podkroví: velkorysý open space cca 100 m²
Přízemí: 4 kanceláře, kuchyňka, 2 menší sklady, sociální zařízení
Mezipatra (1. a 2. NP): samostatné WC
2. NP: 7 kanceláří + 2 menší sklady
Sklep: není
Technické vybavení:
Klimatizace ve vybraných prostorách
Vytápění centrálním novým plynovým kotlem
Inženýrské sítě: voda, plyn, elektřina, kanalizace
Exteriér:
Dvorek cca 150 m2
Plechová garáž cca 38 m2
Lokalita:
Vynikající dostupnost MHD
Rychlé napojení na výpadovky na Ostravu, Šternberk a Přerov
Kompletní občanská vybavenost v okolí
Finanční podmínky
Nájemné: 50 000 Kč / měsíc + DPH
Služby: 13 000 Kč / měsíc + DPH
Jistota (kauce): 63 000 Kč
Ideální pro reprezentativní a funkční zázemí pro vaši firmu s výbornou dostupností.
Ráda vám prostory osobně představím - domluvte si prohlídku ještě dnes.
| Cena: |
(za měsíc) 50 000,- Kč
(+ DPH, + 13 000 Kč zálohy na služby,)
|
|---|
| Počet podlaží objektu | 3 |
|---|---|
| Druh objektu | cihlová |
| Stav objektu | dobrý |
| Energetická třída | G - Mimořádně nehospodárná |
| Vlastnictví | osobní |
| Vlastní pozemek | 333 m² |
| Telekomunikace | Telefon Internet |
| Topení | Ústřední - plynové |
| Doprava | vlak dálnice silnice MHD autobus |
| Elektřina | 230 V |
| Voda | dálkový vodovod |
| Odpad | Městská kanalizace |
| Plyn | Zaveden |
| Parkování | u domu (veřejné) |
| Počet míst k parkování | 1 |
| Celková plocha | 335 m² |
| Účel budovy | Administrativní b. |
| Zastavěná plocha | 165 m² |
| Plocha parcely | 333 m² |
| Ostatní | Plot Sociální zařízení |
| Užitná plocha | 396 m² |
| K dispozici od | 01.03.2026 |
