| Číslo zakázky: | 229946 | ![]() Karta nemovitosti |
|---|---|---|
| Typ zakázky: | prodej |
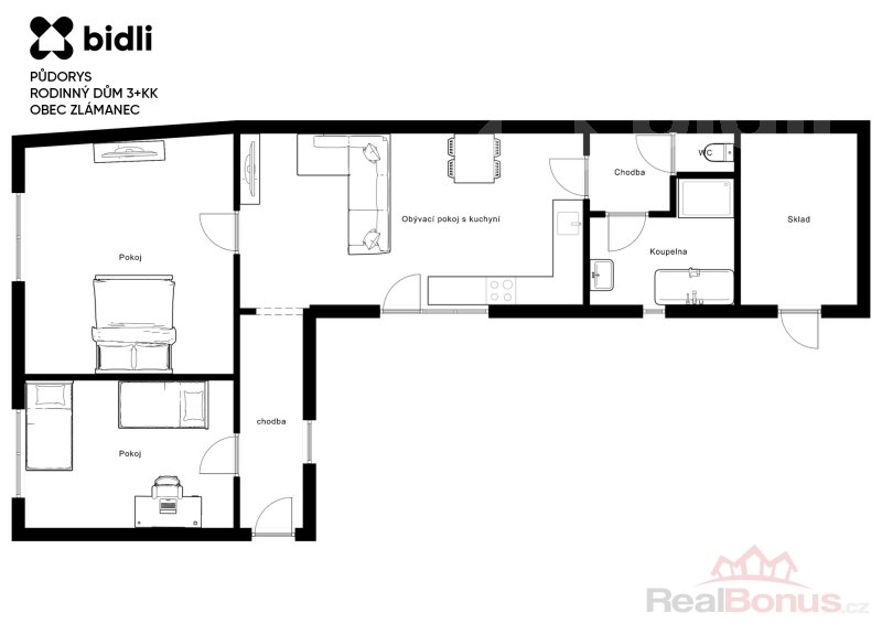
Upozornění: Tato nabídka je rezervována konkrétním zájemcem a v rezervační lhůtě není k dispozici! Nabízím k prodeji krajní řadový rodinný dům / chalupu o dispozici 3+kk v obci Zlámanec u Uherského Hradiště.
Nemovitost je určena k rekonstrukci či přestavbě s možností rozšíření užitné plochy.
Některé úpravy proběhly již v roce 2017 - elektroinstalace, výměna oken, podlahy s vytápěním pomocí topných podlahových fólií značky Termofol, kuchyně, koupelna...
Rekonstrukce však nebyla dokončena a nabízí se tak prostor pro vlastní úpravy dle preferencí nového majitele.
Pozemek je orientován západním směrem a nabídne klidné prostředí pro odpočinek, posezení s přáteli apod.
Dům je napojen na obecní vodovod, kanalizaci a elektřinu. Vytápění je efektivně řešeno podlahovými fóliemi, ohřev vody zajišťuje elektrický bojler.
Zlámanec je příjemná obec v malebné krajině Zlínského kraje, nacházející se přibližně 10 km severozápadně od Uherského Hradiště. Lokalita nabízí klidné bydlení obklopené přírodou, ideální pro rodiny s dětmi nebo pro ty, kteří hledají odpočinek a únik od ruchu města. V obci se nachází základní občanská vybavenost včetně obchodu, mateřské školy, sportovního hřiště a kulturního domu. Okolní příroda nabízí příležitosti pro pěší výlety a cyklistiku.
Díky dobré dostupnosti do Uherského Hradiště a blízkých měst je obec Zlámanec vhodnou volbou pro kombinaci klidného venkovského bydlení s výborným spojením do regionálních center.
| Cena: |
(za nemovitost) 3 300 000,- Kč
(včetně provize a právních služeb) (Včetně provize, právního a hypotečního servisu)
|
|---|
| Druh objektu | cihlová |
|---|---|
| Stav objektu | dobrý |
| Energetická třída | G - Mimořádně nehospodárná |
| Vlastnictví | osobní |
| Vlastní pozemek | 509 m² |
| Vybavení | zahrada |
| Vybaveno | Nezařízeno |
| Topení | Klimatizace |
| Elektřina | 230 V 380 V |
| Voda | dálkový vodovod |
| Odpad | Městská kanalizace |
| Plyn | Není |
| Zastavěná plocha | 123 m² |
| Plocha parcely | 509 m² |
| Ostatní | Plot |
| Užitná plocha | 100 m² |
| Poloha objektu | řadový |
| Velikost bytů (3+1, 2+kk atd.) | 3+kk |




