| Číslo zakázky: | 230480 | ![]() Karta nemovitosti |
|---|---|---|
| Typ zakázky: | prodej |
Nabízíme k prodeji rodinný dům s celkovou podlahovou plochou 310 m2, rozlehlou zahradou o výměře 5 195 m2 a stodolou se zastavěnou plochou 330 m2, nacházející se na okraji obce Valkeřice, v malebné krajině Chráněné krajinné oblasti České středohoří.
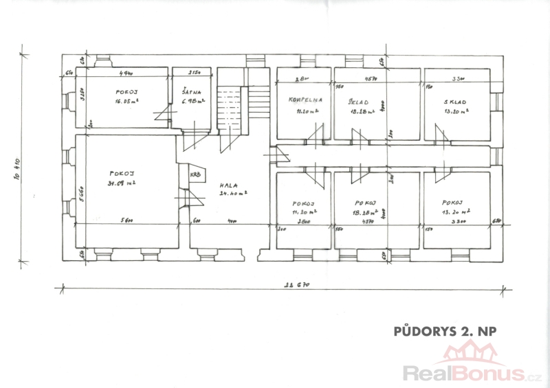
Dům je ideální jak pro rodinné bydlení, tak pro rekreační či komerční využití - například jako penzion, ubytování pro turisty nebo místo pro pořádání rodinných a firemních akcí. Dispozice nabízí 10 prostorných pokojů, sociální zázemí a kuchyň s krásnými kachlovými kamny. V patře jsou zachovalá krbová kamna.
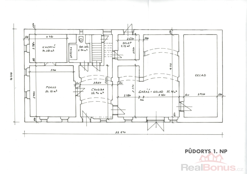
Vytápění zajišťuje kotel na dřevo - a toho je na pozemku dostatek na několik let dopředu. Dům je částečně podsklepený. Zajímavým architektonickým prvkem jsou klenbové stropy ve vstupní chodbě a garáži. Dům sice není zateplen, ale 65 cm silné zdi zajišťují příjemné klima v zimě i v létě. Venkovní omítka je hladká. Rozvody elektřiny jsou stávající - hliník. Půdní prostory jsou zachovalé.
Pitná voda je k dispozici z vlastní studny, odpad je sveden do jímky. Střešní krytina je kombinací eternitových šablon a plechu.
Součástí prodeje je také stodola, která dříve sloužila pro chov zvířat a dnes je určena ke kompletní rekonstrukci - nabízí však velký potenciál pro další využití.
Těším se na vás na prohlídce!
| Cena: |
(za nemovitost) 6 700 000,- Kč
(včetně provize a právních služeb)
|
|---|
| Počet podlaží objektu | 2 |
|---|---|
| Druh objektu | smíšená |
| Stav objektu | dobrý |
| Energetická třída | G - Mimořádně nehospodárná |
| Vlastnictví | osobní |
| Vlastní pozemek | 5 820 m² |
| Vybavení | sklep zahrada podkroví |
| Vybaveno | Částečně zařízeno |
| Zastavěná plocha | 295 m² |
| Plocha parcely | 5 820 m² |
| Užitná plocha | 310 m² |
| Počet bytů - celkem | 1 |
| Poloha objektu | samostatný |
| K dispozici od | 10.10.2025 |




