| Číslo zakázky: | 01273 | ![]() Karta nemovitosti |
|---|---|---|
| Typ zakázky: | prodej |
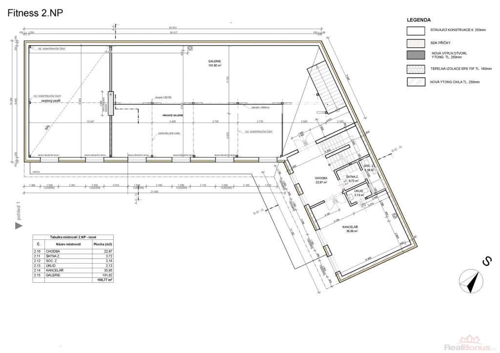
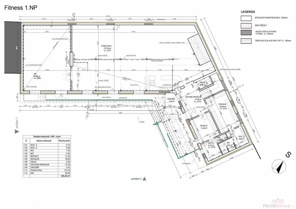
Nabízíme k prodeji sklad s vydaným stavebním povolením k přestavbě na fitness centrum.
Objekt je součástí uzavřeného areálu Spiegelův dvůr, který prochází revitalizací. Součástí areálu je nyní stavba řadových garáží a hlavní budova po rekonstrukci, kterou tvoří restaurace v přízemí a byty v nadzemních podlažích.
Nabízený sklad je ve stavu k rekonstrukci a projekt počítá s celkem 470 m2 užitné plochy ve dvou podlažích. Z toho je v plánu cca 273 m2 plochy k cvičení, zbytek tvoří zázemí.
Přímo v areálu jsou v tuto chvíli plánována 4 vyhrazená parkovací místa pro fitness.
V případě dotazů kontaktujte makléře nemovitosti.
| Cena: |
na vyžádání v RK (info v RK)
|
|---|
| Druh objektu | cihlová |
|---|---|
| Stav objektu | před rekonstrukcí |
| Energetická třída | G - Mimořádně nehospodárná |
| Voda | dálkový vodovod |
| Odpad | Městská kanalizace |
| Účel budovy | Sklad |
| Ostatní | Parkoviště |
| Užitná plocha | 470 m² |
| Inženýrské sítě | Vodovod Kanalizace |
