| Číslo zakázky: | 233315 | ![]() Karta nemovitosti |
|---|---|---|
| Typ zakázky: | prodej |
Exkluzivně vám nabízíme výjimečný stavební pozemek s jedinečným výhledem do okolí.
Nachází se na ulici Pod Vinohrady v žádané lokalitě Troubsko, na hranici města Brna.
Pozemek má celkovou velikost 1903 m2.
Je zcela připravený k výstavbě.
Všechny inženýrské sítě jsou k dispozici.
Stavební povolení je vyřízeno.
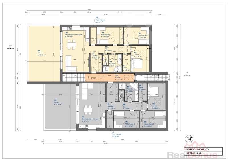
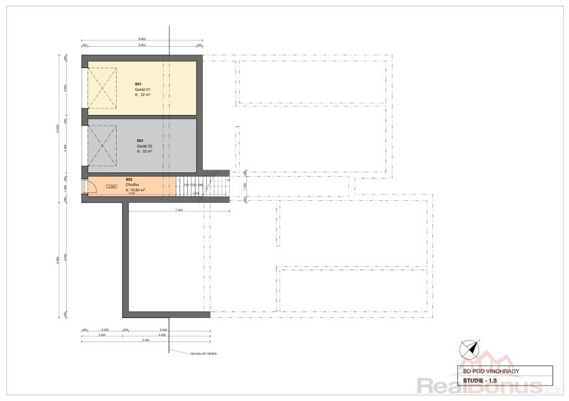
K pozemku je vypracován projekt novostavby moderního viladomu se dvěma luxusními byty. Každý byt má 117m2, větší terasu s nádherným výhledem 47m2 a 59m2, vlastní garáž 32m2 a zahradu. Před domem je plánováno šest parkovacích stání.
Viladům se vyznačuje promyšlenou architekturou, elegantními detaily a praktickým dispozičním řešením.
Svůj budoucí viladům si můžete přizpůsobit. Je možno provést změny před dokončením stavby. Například přistavět pokoj na nové patro.
Viladům slibuje moderní bydlení v klidné lokalitě, přitom kousek od moravské metropole s mnoha pracovními příležitostmi na dosah.
Výborná dopravní dostupnost
- MHD spojení s Brnem
- Rychlé napojení na dálnici D1 a D2
- Dojezd do centra Brna během několika minut
V okolí je krásná příroda - lesy, rybníky, možnosti rekreace.
V případě zájmu o další informace nebo domluvu prohlídky mě prosím kontaktujte telefonicky.
S financováním Vám samozřejmě rádi pomůžeme.
| Cena: | na vyžádání v RK |
|---|
| Energetická třída | G - Mimořádně nehospodárná |
|---|---|
| Vlastnictví | osobní |
| Vlastní pozemek | 1 903 m² |
| Umístění objektu | klidná část obce |
| Telekomunikace | Telefon Internet |
| Doprava | vlak dálnice silnice MHD autobus letiště |
| Elektřina | 230 V 380 V |
| Voda | dálkový vodovod |
| Odpad | Městská kanalizace |
| Plyn | Na hranici |
| Občanská vybavenost | Škola Školka Zdravotnická zařízení Pošta Supermarket Kompletní síť obchodů a služeb Restaurace Místní úřad Kulturní zařízení Koupaliště |
| Plocha parcely | 1 903 m² |
| Komunikace | asfaltová |
| Druh pozemku | pro bydlení |
| Inženýrské sítě | Vodovod Kanalizace Plyn Elektřina |
| Druh stavby | rodinný dům, rekreační chalupa, rekreační pozemek |
| Druh zápisu v katastru | katastr nemovitostí |
| Druh číslování parcely | Stavební parcela |
| Přístup k pozemku | z veřejné komunikace |
| K dispozici od | 24.10.2025 |




