| Číslo zakázky: | 233310 | ![]() Karta nemovitosti |
|---|---|---|
| Typ zakázky: | pronájem |
Nabízím k pronájmu výjimečný komerční prostor v samotném centru Trutnova, v ulici Horská, jen pár kroků pod náměstím.
Prostor má samostatný vstup přímo z hlavní frekventované třídy, což zajišťuje vynikající viditelnost i dostupnost.
Jedná se o velmi reprezentativní místo, ideální zejména pro:
- bankovní a finanční instituce.
- pojišťovny.
- poradenské a klientské centrum.
- prémiovou prodejnu či showroom.
Hlavní přednosti prostoru:
- vstup přímo z hlavní ulice.
- dvě velké prosklené výlohy u vstupu - ideální pro prezentaci a reklamu.
- výborná pěší frekvence.
- prestižní adresa v centru města.
- samostatné měření všech energií (elektřina, voda, plyn).
- vytápění vlastním plynovým kotlem - plná kontrola nad provozními náklady.
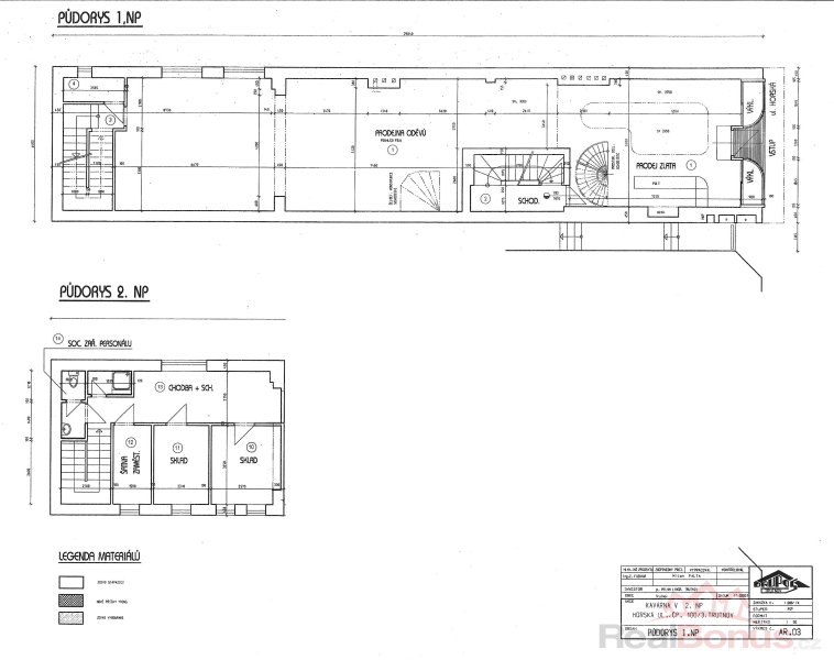
Dispozice a plochy:
Přízemí:
- prodejní / klientský prostor: 135 m2.
- sociální zázemí: 2,7 m2.
1. patro:
- sklady / kanceláře: 41 m2
- sociální zázemí: 4 m2
Celková plocha k pronájmu: cca 189 m2.
| Cena: | na vyžádání v RK |
|---|
| Druh objektu | cihlová |
|---|---|
| Stav objektu | velmi dobrý |
| Energetická třída | G - Mimořádně nehospodárná |
| Vlastnictví | osobní |
| Umístění objektu | centrum |
| Telekomunikace | Internet |
| Topení | Lokální - plynové |
| Doprava | vlak silnice MHD autobus |
| Elektřina | 230 V |
| Voda | zdroj pro celý objekt |
| Odpad | Městská kanalizace |
| Sociální zařízení | ano |
| Užitná plocha | 189 m² |
| Plocha kanceláří | 189 m² |
| Komunikace | dlážděná |
| Druh prostor | Obchodní |
| K dispozici od | 01.06.2026 |
