| Číslo zakázky: | TT0323/55 | ![]() Karta nemovitosti |
|---|---|---|
| Typ zakázky: | prodej |
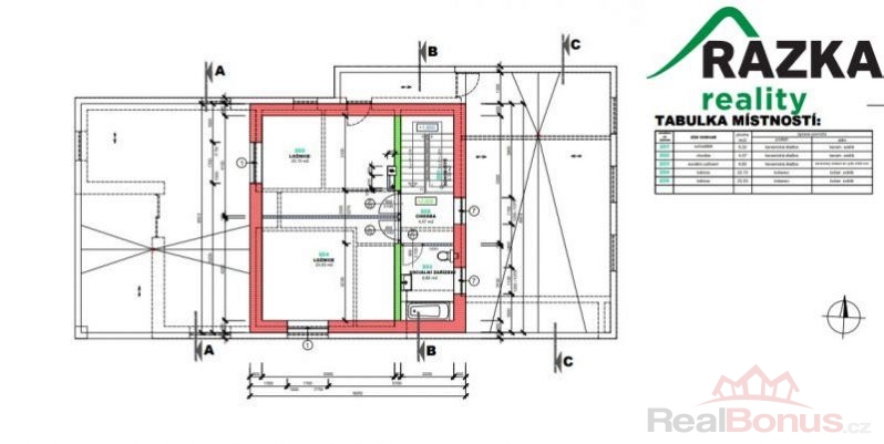
Nabízíme k prodeji hrubou stavbu rodinného domu (bez střešní krytiny) na pozemku o rozloze 734 m2 v nově vznikající obytné lokalitě v Klatovech. Nemovitost potěší terasou a dvougaráží. Jedná se o hrubou stavbu s monolitickými základy, ve kterých je dokončena kanalizace, která je dále napojena na veřejnou kanalizaci a veškerými prostupy pro el. vedení, vodu, plyn a optické vlákno. Kolem domu je uložen zemnící pásek s vývody na hromosvody. Zastavěná plocha včetně garáže, skladu, okapového chodníčku, pochozí cesty, terasy, místa pro bazén a pojízdných ploch činí 335 m2. Cena stavby 4 600 000,- Kč + pozemek 4 200,-/m2. Jako užitná plocha jsou uvedeny zastavěné plochy/rodinný dům.
| Cena: |
(za nemovitost) 4 600 000,- Kč
(uvedená cena je bez pozemku)
|
|---|
| Číslo podlaží v domě | 1 |
|---|---|
| Počet podlaží objektu | 2 |
| Celková podlahová plocha | 138 m² |
| Druh objektu | cihlová |
| Energetická třída | B - Velmi úsporná |
| Vlastní pozemek | 732 m² |
| Vybavení | terasa |
| Vybaveno | Částečně zařízeno |
| Celková plocha | 138 m² |
| Zastavěná plocha | 355 m² |
| Plocha parcely | 732 m² |
| Užitná plocha | 138 m² |
| Druh stavby | rodinný dům, rekreační chalupa, rekreační pozemek |
| Poloha objektu | samostatný |
