| Číslo zakázky: | 5380BL046 | ![]() Karta nemovitosti |
|---|---|---|
| Typ zakázky: | pronájem |
Nabízíme Vám k pronájmu rozsáhlé sklepní prostory o přibližné skladové ploše 162 m2, umístěné pod bývalou administrativní budovou Adastu Adamov.
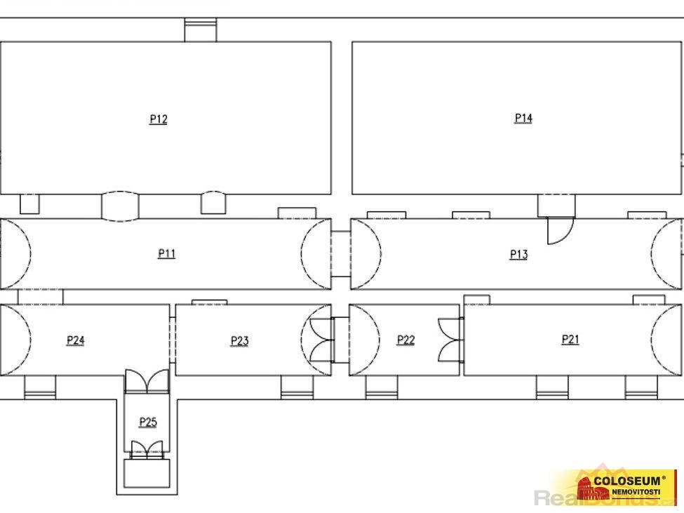
Sklepení sestává celkem ze šesti sklepů o výměrách od 8,58 do 55,30 m2 (viz příloha půdorys) - dva sklepy jsou využitelné samostatně, další sklepy jsou průchozí, využitelné po dvojicích. Všechny sklepy jsou přístupné z chodby procházející středem objektu. Jeden větší sklep je vybaven toaletou s umývadlem (tento sklep byl využíván k únikovým hrám). Součástí prostor k pronájmu je funkční nákladní výtah s nosností 250 kg. Elektřina o napětí 220 V v rekonstruovaných rozvodech s vlastním měřením spotřeby je přivedena do všech místností. Sklepení je využitelné např. jako prostory k uskladnění ovoce, zeleniny, popř. vína, jako pěstírna žampiónů, dílny apod.
Majitel preferuje pronájem prostor jako celku, je však přístupný i pronájmu jednotlivých sklepů. Nájemné (k jednání) je 20 000,- Kč/měsíc/celek. Vratná kauce je 20 000 Kč.
Průkaz energetické náročnosti budovy nebyl dodán a z toho důvodu uvádíme třídu G.
Pro více informací nebo domluvení termínu prohlídky neváhejte kontaktovat realitního makléře.
| Cena: |
(za měsíc) 20 000,- Kč
(cena k jednání)
|
|---|
| Druh objektu | smíšená |
|---|---|
| Stav objektu | dobrý |
| Energetická třída | G - Mimořádně nehospodárná |
| Účel budovy | Sklad |
| Užitná plocha | 162 m² |
| K dispozici od | 01.01.2025 |
