| Číslo zakázky: | 162 | ![]() Karta nemovitosti |
|---|---|---|
| Typ zakázky: | prodej |
Hledáte byt po kompletní rekonstrukci na klidném místě v Hodoníně? Hledáte investiční byt ke krátkodobemu ubytování? S bezproblémovým parkováním a ihned k nastěhování / provozování?
Ve výhradním zastoupení majitelky Vám zprostředkujeme koupi bytu o velikosti 3+kk po kompletní modernizaci
v ulici I. Olbrachta v okresním městě Hodonín.
Bytová jednotka se nachází ve třetím nadzemním podlaží ze čtyř bez výtahu. Je v osobním vlastnictví a bez dluhů na revitalizaci bytového domu.
Kompletní rekonstrukce bytu proběhla v roce 2025.
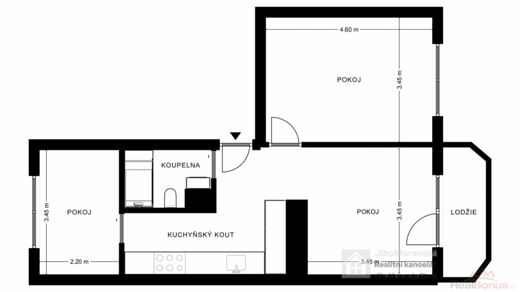
Dispozice bytu: chodba, koupelna s toaletou a sprchovým koutem, kuchyňský kout s vestavěnými spotřebiči,
ložnice, pokoj, pokoj s přístupem do lodžie, který má výhed do nově budovaného parku.
V mezipatře se nachází komora. Ve sklepních prostorách bytového domu je prostorný uzamykatelný sklep.
Užitná plocha bytu je 68 m s obytnou plochou 51 m. (plocha lodžie 4,30 m, komora v mezipatře 1,30 m a zděný sklep 11,60 m.
Měsíční náklady na provoz bytu jsou ve výši 4.895 Kč (elektřina, voda, stočné, služby a fond oprav). Byt má vlastní bojler a je vytápěn vlastním plynovým kotlem.
Kuchyňská linka je vybavena elektrickou troubou, mikrovlnou troubu a indukční varnou deskudále je v kuchyňské lince zabudována digestoř, myčka, pračka a lednice s mrazničkou. Dveře do
koupelny a ložnice se zasouvají do pouzdra. Byt je vytápěn vlastním elektrickým kotlem.
V blízkém okolí bytového domu je mateřská i základní škola, obchod s potravinami a dětské hřiště. V širším
okolí pošta a sportovní hala. Na autobusovou zastávku MHD dojdete do 7 minut chůze.
Parkování přímo před domem.
K nastěhování dohodou.
V případě více vážných zájemců, si prodávající vyhrazuje právo vybrat kupujícího, na základě jím stanovených
kritérií.
| Cena: | (za nemovitost) 5 145 000,- Kč |
|---|
| Dispozice bytu | 3+kk |
|---|---|
| Číslo podlaží v domě | 3 |
| Počet podlaží objektu | 4 |
| Celková podlahová plocha | 68 m² |
| Druh objektu | panelová |
| Stav objektu | velmi dobrý |
| Energetická třída | G - Mimořádně nehospodárná |
| Vlastnictví | osobní |
| Počet podlaží pod zemí | 1 |
| Lodžie | 4 m² |
| Plocha sklepu | 13 m² |
| Umístění objektu | klidná část obce |
| Doprava | vlak |
| Odpad | Městská kanalizace |
| Rok rekonstrukce | 2 025 |
| Stáří objektu | 35 |
| Rok kolaudace | 1 990 |
| Užitná plocha | 68 m² |
| Komunikace | asfaltová |
| Charakter okolní zástavby | obytná |
