| Číslo zakázky: | 1265 | ![]() Karta nemovitosti |
|---|---|---|
| Typ zakázky: | prodej |
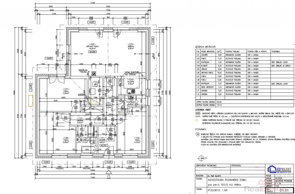
V exkluzivním zastoupení majitele vám nabízíme k prodeji novostavbu rodinného domu, který se nachází v Úštěku, místní část Vědlice. Stavba je umístěna na jižním okraji obce v blízkosti lesa. Jedná se o samostatně stojící dřevostavbu (bez sklepa) o dispozici 4+kk s celkovou užitnou plochou 101 m2.
Tato moderní novostavba nabízí úžasnou pohodu a komfort. Dispozice domu je následující: zádveří, technická místnost včetně prádelny, 3 samostatné pokoje, obývací pokoj s přímým vstupem na budoucí prostor terasy, který je propojen s kuchyní a jídelnou. V domě jsou ještě 2 koupelny včetně WC, přičemž v jedné je vana a ve druhé sprchový kout. V celém domě byli použity při výstavbě opravdu kvalitní stavební materiály a technologie, díky tomu je dům energeticky velmi úsporný a spadá do sk. B. Vytápění zajišťuje tepelné čerpadlo Protherm (systém vzduch - voda) a je řešeno jako teplovodní podlahové vytápění v celém domě. Součástí vnitřní jednotky tepelného čerpadla je zásobník vody (140 l) pro ohřev vody. V domě je rozvedena jednotka větrání s rekuperací tepla Zehnder a úsporný změkčovač vody od společnosti Watex. Konstrukce střechy je sedlová krytina je betonová taška Bramac, hromosvod osazen. Komín je systémový Schiedel do budoucna lze připojit kamna dle vlastního výběru. Hydro a tepelná izolace (podlahy, stěny a stropy) taktéž. Podlahy jsou plovoucí v kombinaci s keramikou, Okna jsou plastová s izolačními trojskly. Do domu je zavedena elektřina 220 i 380 V, veřejný vodovod, dešťová voda je svedena do podzemní retenční nádrže (objem 10 m3). Odpadní vody jsou svedeny do vlastní ČOV. Plyn není v lokalitě zaveden.
Za domem směrem na západ je rozlehlý pozemek - zahrada o celkové výměře 1275 m2. Pozemek je rovinatý a po celém svém obvodu oplocen a osázen vzrostlými stromy. Na tomto pozemku je převážně travní porost. Nachází se zde taktéž nové kotce pro psy. Zbývající část pozemku je zastavěná plocha a nádvoří o celkové výměře 127 m2 jehož součástí je i budoucí prostor terasy. Parkování pro 2 auta je k dispozici na vlastním pozemku vedle domu, který je zpevněn zámkovou dlažbou. K domu je příjezd po zpevněné obecní komunikaci, která je udržována.
V dané lokalitě je omezená občanská vybavenost (hospoda, zastávka BUS). Vše potřebné však najdete v 9 km vzdáleném Úštěku. V přilehlých lesích vede mnoho cyklo a turistických tras, které vybízejí k pobytu na čerstvém vzduchu. Nudit se zde rozhodně nebudete. S financováním Vám rádi pomůžeme. V případě zájmu o prohlídku či více informací prosím kontaktujte makléře. Těšíme se na vás.
| Cena: | (za nemovitost) 7 240 000,- Kč |
|---|
| Číslo podlaží v domě | 1 |
|---|---|
| Počet podlaží objektu | 1 |
| Celková podlahová plocha | 101 m² |
| Druh objektu | dřevěná |
| Stav objektu | novostavba |
| Energetická třída | B - Velmi úsporná |
| Vlastní pozemek | 1 402 m² |
| Umístění objektu | klidná část obce |
| Vybaveno | Možno zařídit |
| Topení | Jiné |
| Elektřina | 230 V |
| Připojení na internet | Jiné |
| Zastavěná plocha | 126 m² |
| Plocha parcely | 1 402 m² |
| Užitná plocha | 101 m² |
| Plocha zahrady | 1 275 m² |
| Inženýrské sítě | Vodovod Elektřina |
| Druh stavby | rodinný dům, rekreační chalupa, rekreační pozemek |
| Poloha objektu | samostatný |




