| Číslo zakázky: | 653280 | ![]() Karta nemovitosti |
|---|---|---|
| Typ zakázky: | pronájem |
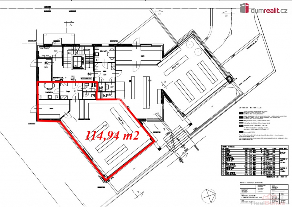
+ služby a elektroměr, Dumrealit.cz Vám zprostředkuje exkluzivně pronájem zcela nového komerčního prostoru o velikosti 114,94 m, v nově stavěné budově (PENB B) přímo u budoucí stanice metra D - Nové Dvory (přes ulici Štúrova), která bude dokončena v druhé polovině roku 2026. Tento prostor se nachází v přízemí třípatrové nízkoenergetické budovy, kde v přízemí je nabízený prostor o velikosti 143,18 m, který bude mít hlavní vstup z ulice Štúrova přímo od zastávky MHD / Bus Tempo, vstup bude přes schodiště a také bude plně bezbariérový. Prostor 114,94 m může být jako obchodní (např. kavárna, prodejna, pekárna) nebo jako kancelář / showroom nebo i ordinace, výběr je plně na klientovi. Prostor lze plně modifikovat, lze ho rozšířit o další prostor nabízený k pronájmu o velikosti 143,18 m s vlastním zázemím a samostatným vstupem. K dispozici bude toaleta, šatna, předsíň a úklidová místnost. K prostoru lze dopronajmout venkovní terasu a menší zahrádku, dále parkovací stání a popř. sklepy. V domě bude 12 parkovací stání v suterénu domu, 6 x sklep a dále lze pronajmout až 3 venkovní parkovací stání. Aktuálně se v domě instalují okna, sdk příčky a klimatizace. Tato budova bude dokončena a zkolaudována v druhé polovině roku 2026, již nyní mohou probíhat prohlídky a úpravy prostor před dokončením přímo na přání nového nájemce. Velmi doporučuji všem zájemcům, kteří již nyní hledají atraktivní prostor u budoucí stanice metra D Nové Dvory, v ulici Štúrova, Praha 4. Ev. číslo: 652666. Energetický štítek: B (60 kWh/m2/rok).
| Cena: |
(za m2 / měsíc) 360,- Kč
(+ služby a elektroměr)
|
|---|
| Počet podlaží objektu | 4 |
|---|---|
| Druh objektu | skeletová |
| Stav objektu | novostavba |
| Energetická třída | B - Velmi úsporná |
| Vybaveno | Nezařízeno |
| Počet míst k parkování | 2 |
| Zastavěná plocha | 258 m² |
| Užitná plocha | 115 m² |
| Druh prostor | Obchodní |
