| Číslo zakázky: | 233481 | ![]() Karta nemovitosti |
|---|---|---|
| Typ zakázky: | pronájem |
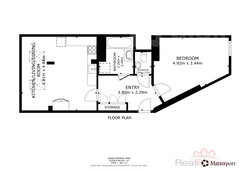
Objevte ideální bydlení v srdci Prahy. Nabízíme k pronájmu krásný a plně zařízený byt o dispozici 2+kk s celkovou plochou 54 m2. Byt je připraven k okamžitému nastěhování, stačí si přivézt své osobní věci a můžete začít bydlet. Byt je umístěn v 5. patře (posledním patře) moderního domu s výtahem a nabízí příjemný výhled na Vyšehrad.
Dispozice 2+kk, prostorná chodba s dostatkem úložných prostor, koupelna s vanou s praktickou zástěnou a novou pračkou se sušičkou, samostatná toaleta, obývací pokoj s kuchyňským koutem (nová lednice s mrazákem, trouba, varná deska, digestoř, mikrovlnná trouba, základní kuchyňské vybavení nože, příbory, hrnce, hrnečky, skleničky), ložnice s postelí a skříněmi, psací stolek. K bytu náleží sklep (4m2).
Nájemné: 22 000 Kč, Poplatky: zálohy 1400 Kč, elektřina na nájemce; vratná kauce ve výši dvou nájmů. Provize RK 1 měsíční nájem.
Dopravní dostupnost:
Metro "Smíchovské nádraží": 3 minuty pěšky
Tramvajová zastávka "Lihovar": 5 minut pěšky
Vlakové nádraží "Praha-Smíchov": 10 minut pěšky
Parkování na ulici před domem.
Veškerá občanská vybavenost k dispozici: OC Nový Smíchov: 5 min. autem nebo 15 min. pěšky
Cesta autem do centra Prahy 1 trvá cca 15 min. Veřejnou dopravou, např. metrem ze stanice "Smíchovské nádraží" na stanici "Staroměstská", se dostanete za přibližně 10-12 min., poté si můžete užít krásnou procházku Pařížskou ulicí. Tato lokalita je tedy velmi dobře dostupná a nabízí rychlé spojení do centra města.
Byt je ideální pro jednotlivce nebo pár hledající komfortní bydlení s vynikající dostupností a občanskou vybaveností. Pro více informací a zájmu o prohlídku nás neváhejte kontaktovat.
| Cena: |
(za měsíc) 22 000,- Kč
(Nájem Kč 22 000/měs., Zálohy Kč 1400/měs., vratná kauce ve výši dvou nájmů. Elektřina se převádí na nájemce. Provize RK 1 mesíční nájem.)
|
|---|
| Dispozice bytu | 2+kk |
|---|---|
| Číslo podlaží v domě | 6 |
| Počet podlaží objektu | 6 |
| Celková podlahová plocha | 54 m² |
| Druh objektu | cihlová |
| Stav objektu | velmi dobrý |
| Energetická třída | G - Mimořádně nehospodárná |
| Vlastnictví | osobní |
| Počet podlaží pod zemí | 1 |
| Plocha sklepu | 4 m² |
| Bezbariérový byt | ano |
| Vybavení | výtah sklep |
| Telekomunikace | Internet |
| Ostatní rozvody | Satelit Kabelová televize |
| Popis vybavení | Varná deska, Myčka nádobí, horkovzdušná trouba elektrická, mikrovlnná trouba, digestoř. Nová lednice s mrazákem. V koupelně je pračka a sušička v jednom. Základní kuchyňské vybavení, příbory, nože, talíře, hrnce. Byt je připravený rovnou k nastěhování. |
| Topení | Ústřední - dálkové |
| Doprava | silnice MHD autobus |
| Elektřina | 230 V |
| Voda | dálkový vodovod |
| Odpad | Městská kanalizace |
| Plyn | Není |
| Občanská vybavenost | Škola Školka Zdravotnická zařízení Supermarket Kompletní síť obchodů a služeb Restaurace |
| Rok rekonstrukce | 2 015 |
| Stáří objektu | 1 919 |
| Užitná plocha | 54 m² |
| K dispozici od | 15.09.2025 |




